Новый Русский дом
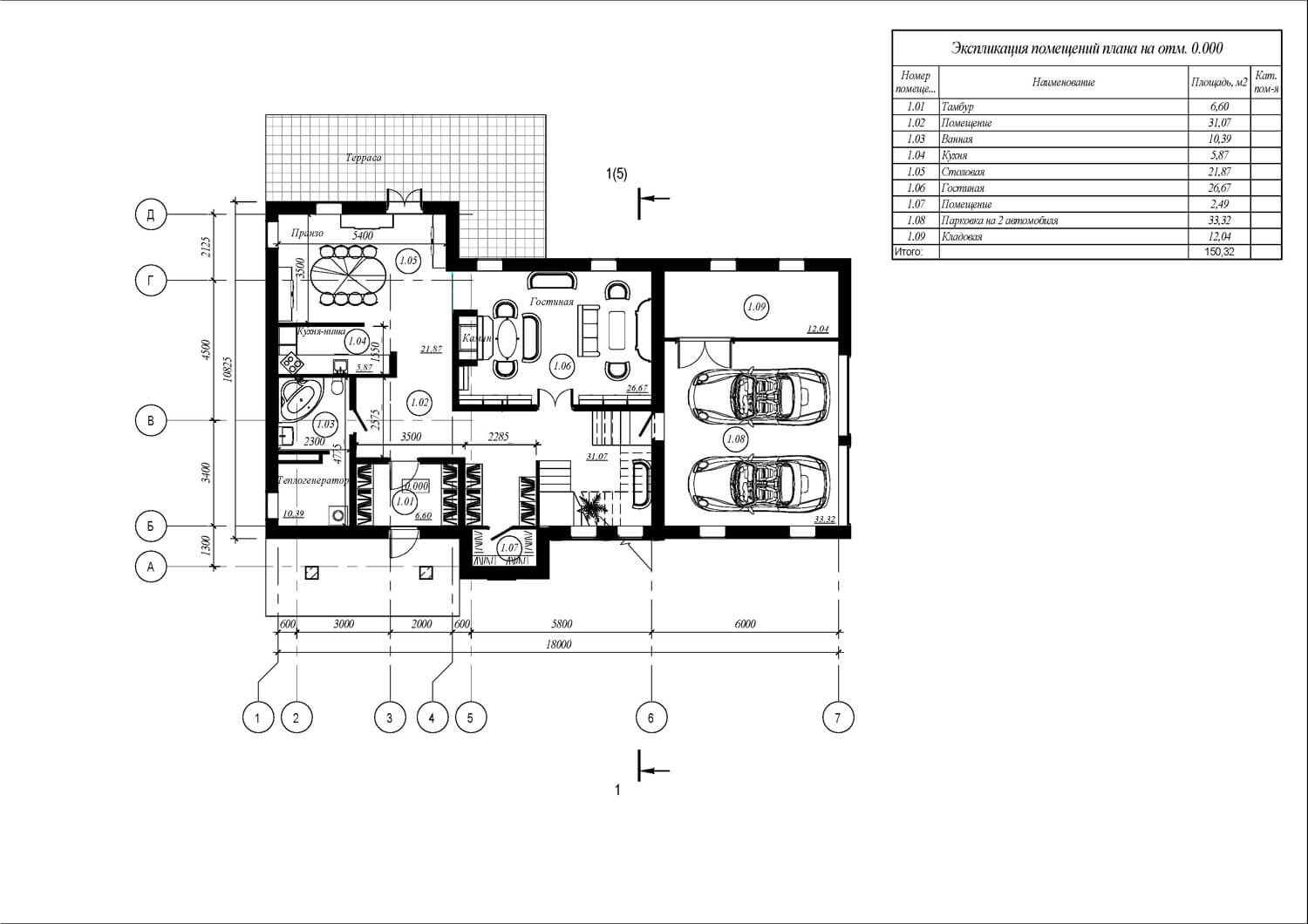
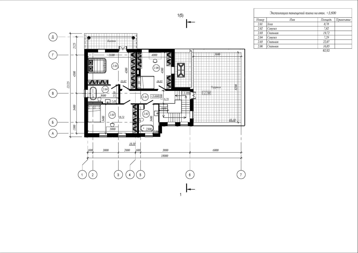
Пространство особняка формируется относительно главной ценности любой семьи — это быть вместе. Для этого скомпонована зона столовой и гостиной — смежные помещения. Гостиная, располагающаяся на первом этаже, освещена световым фонарем и имеет витражное остекление почти на всю высоту. Данное пространство связывает все планировочные элементы на первом этаже. Здесь же располагается лестница, соединяющая два этажа. В проекте предусмотрено 3 спальни (располагаются на втором этаже). В мастер-спальне предусмотрены санузел и зона гардероба, а также выход на балкон. Для теплого времяпрепровождения предусмотрен камин в гостиной, обеденный зал — для семейных обедов. В проекте присутствует несколько террас: две на первом этаже и одна на втором. Выход на террасу второго этажа осуществляется через лестницу. Так же предусмотрен гараж на два машиноместа.













