Адмирал
Проект частного одноквартирного дома по каркасной технологии «Адмирал».
Концепцией проекта заложено сходство с круизным лайнером, дом запроектирован для Крымского побережья и вдохновлен морем. Дом является разноуровневым, с большими открытыми пространствами. Относительно компактный в планировке, дом вмещает зоны отдыха и зоны быта и времяпровождения. План дома является сквозным по эргономике пространства, как по горизонтали, так и по вертикали, попасть на второй уровень можно как из дома, так и с улицы, это удобно при разновозрастном составе проживающих. Как правило, люди старшего возраста занимают комнату на 1-м этаже, а их дети селятся на 2-м, при разном ритме жизни такой союз не вызывает противоречий.
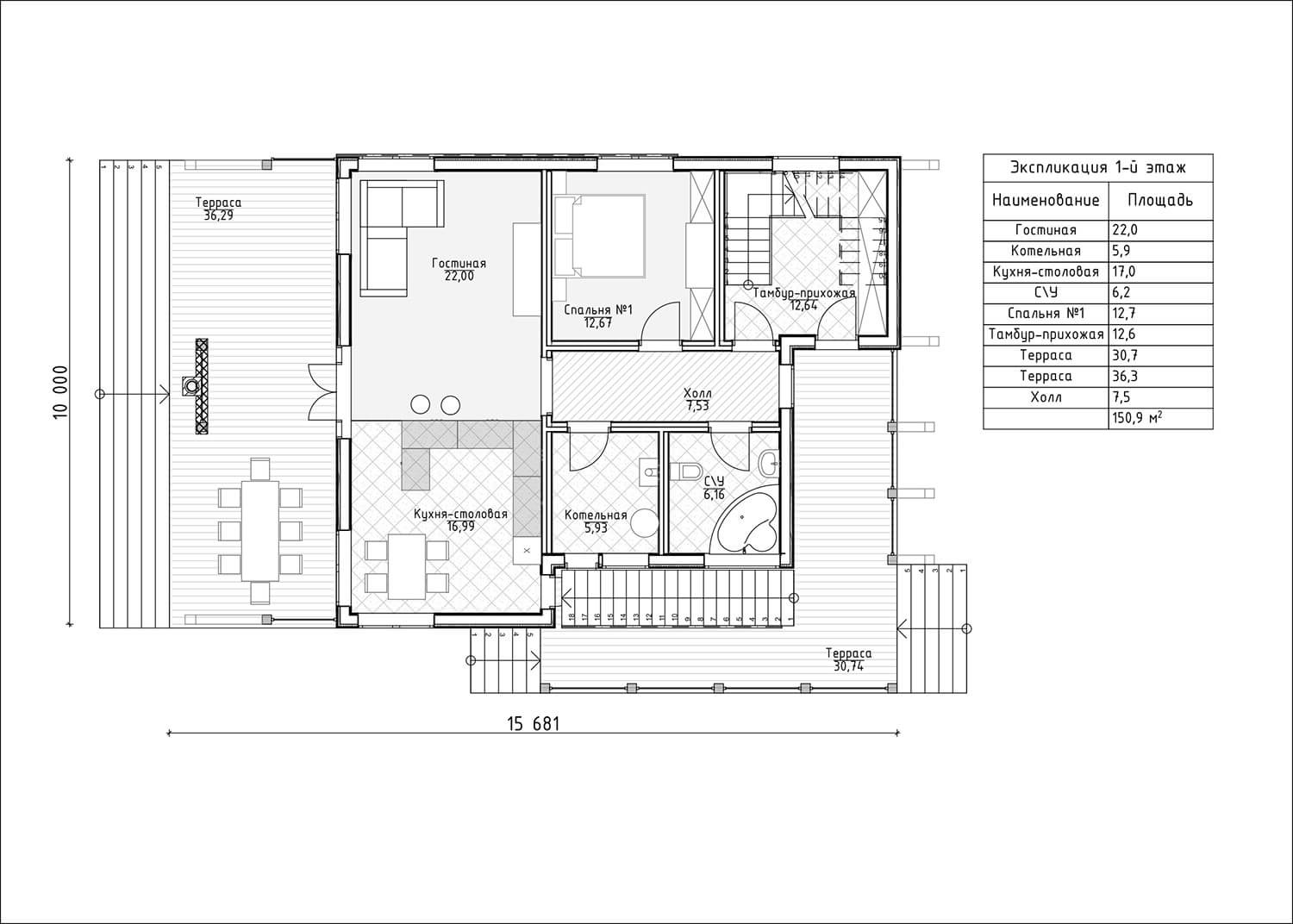
Первый этаж дома-корабля представляет собой стандартный набор помещений дома на семью и дополнен обширными террасами с зонами отдыха, одна открытая для ровного загара, вторая закрытая от палящего солнца или осадков со встроенной зоной барбекю.
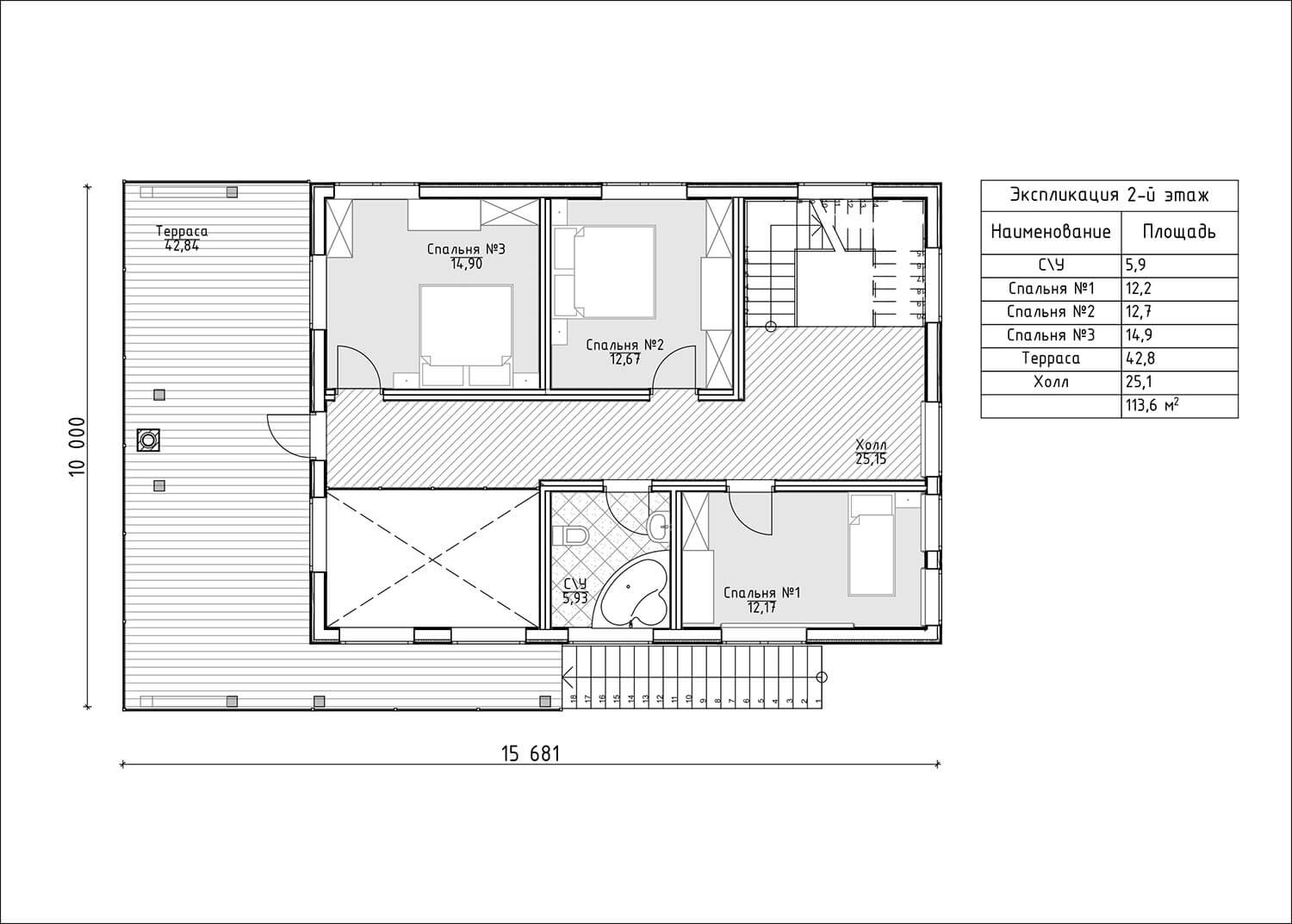
Второй этаж представляет из себя набор помещений для молодой активной семьи, для которой предусмотрена спальня, отделенная от детской холлом, есть кабинет, санузел для своего этажа. При таких обширных террасах и навесах в доме предусмотрен второй свет, позволяющий раскрыть пространство и дарящий ощущение свободы.








