Множественный выбор
Выбрать номинацию

Альфа

Основную роль в отделке фасадов играет дерево в комбинации со стеклянными витражами и металлическими ограждениями. Высокие витражи с тонкими переплетами практически незаметны глазу. Брус уложенный в разных направлениях и под разными углами создает на фасадах активный рисунок, еще больше искажающий геометрию дома. Тому же способствуют фрагменты стен, выделенные чуть отличающимся оттенком дерева.

Компактный загородный дом динамичной формы своим энергичным образом напоминает скульптурную композицию.

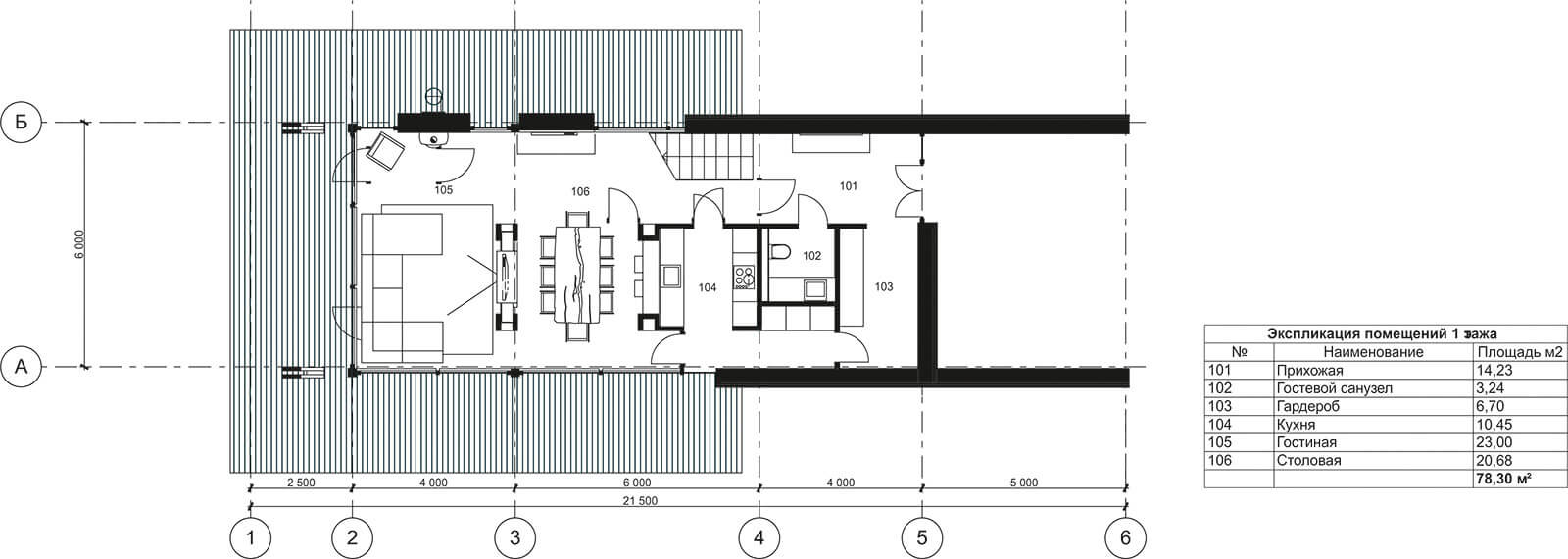
Несмотря на кажущуюся сложность, дом имеет ясную и удобную планировку внутреннего пространства, в границы которого встроен весь необходимый набор помещений. На первом этаже за стеклянным фасадом разместились свободная гостиная и кухня, совмещенная с зоной столовой.

Выставка конкурсных проектов
ВЫСТАВКА КРАСИВЫЕ ДОМА - 2026

ФОТОГАЛЕРЕЯ
ЭКСПОЗИЦИИ
КОНКУРСНЫХ
ПРОЕКТОВ

КАК ЭТО БЫЛО
Выставка конкурсных проектов проходит дважды в год (Весна | Осень)

Отзывы

Можно использовать **жирный**, *курсив*, [ссылку](https://example.com), списки через - или 1.
Пока отзывов нет. Будьте первым.