Множественный выбор
Выбрать номинацию

Английская классика

Проект был разработан для большой семьи на западе Подмосковья.
Стиль дома классика с элементами английской архитектуры.
Дом двухэтажный с цокольным и мансардным этажом

Цветовое решение: белые стены с серой крышей и цоколем, контрастный розово-серый в акцентах

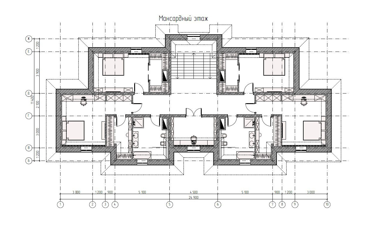
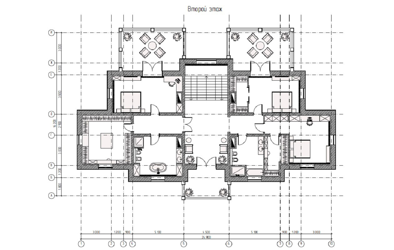
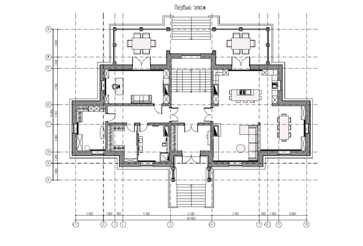
Планировочное решение:
на цокольном этаже: тренажерный зал, сауна и купелью и комнатой отдыха, с.у., кинотеатр, бильярдная.
на 1 этаже: гостиная-кухня-столовая с выходом на террассу, кабинет, с.у.
на 2 этаже: 4 спальных комнаты с с.у. и гардеробными
на мансардном этаже: 4 спальных комнаты с с.у. и гардеробными, кабинет

Несущие конструкции:
фундамент и перекрытия - ж.б. плита
стены - керамические блоки
крыша - деревянный каркас
Фасады: цоколь - плитка, стены штукатурка и клинкерная плитка

Выставка конкурсных проектов
ВЫСТАВКА КРАСИВЫЕ ДОМА - 2026

ФОТОГАЛЕРЕЯ
ЭКСПОЗИЦИИ
КОНКУРСНЫХ
ПРОЕКТОВ

КАК ЭТО БЫЛО
Выставка конкурсных проектов проходит дважды в год (Весна | Осень)

Отзывы

Можно использовать **жирный**, *курсив*, [ссылку](https://example.com), списки через - или 1.
Пока отзывов нет. Будьте первым.