Апартаменты для игры в гольф
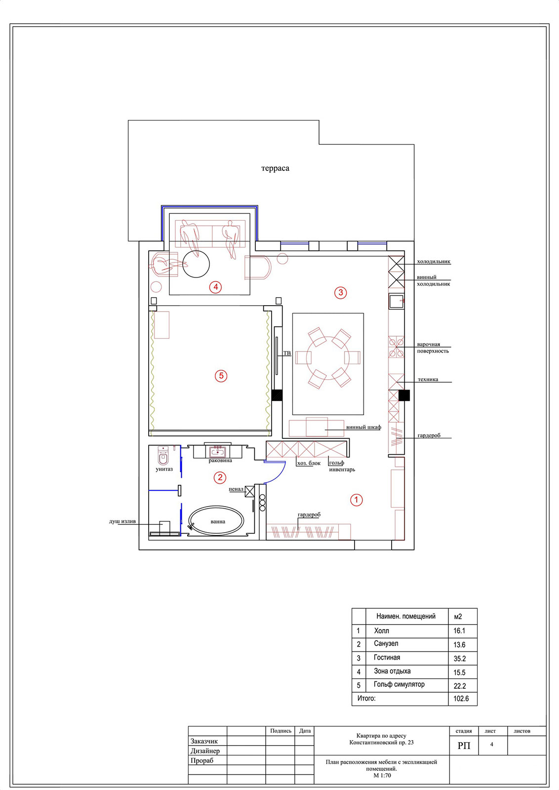
Частные апартаменты площадью 107 м² расположены в центре г. Санкт-Петербурга. Хозяин этой квартиры — любитель красивой игры в гольф. В какой-то момент он решил, что хочет иметь собственное пространство для занятий спортом и отдыха с семьей и друзьями. Так появился этот уникальный интерьер, главным «действующим лицом» которого стал профессиональный гольф-симулятор. Вокруг него и выстраивались все остальные предметы. В квартире предусмотрены все условия для проведения приятного досуга. Это и домашний кинотеатр, и гостиная-столовая, и шикарная деревянная ванна, которая притягивает взгляд. Украшением жилища стала летняя терраса для уютных посиделок на свежем воздухе.
Отзывы
Пока отзывов нет. Будьте первым.













