Апартаменты Красная Стрела
Чуточку хулиганские и в то же время респектабельные, очень комфортные, просторные апартаменты для семьи с одним ребенком.
Все предметы удобные, диваны очень мягкие.
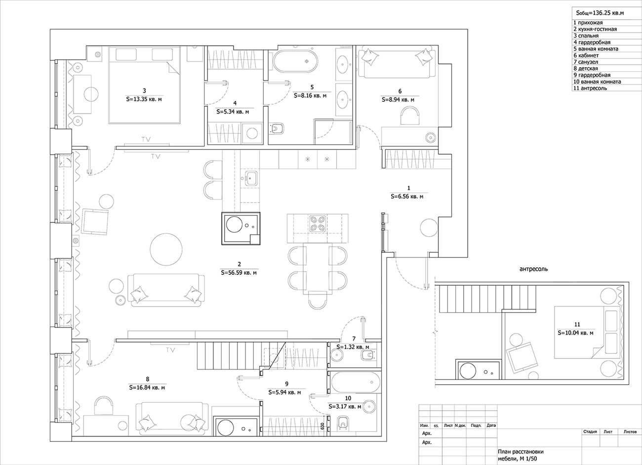
Планировка позволяет оставить гостя на ночевку — прямо из прихожей сделан вход в кабинет с небольшим диванчиком.
Детская спланирована как отдельные апартаменты — у дочери своя небольшая гостиная и ванная комната на первом уровне, а также спальня на антресольном этаже.
Отзывы
Пока отзывов нет. Будьте первым.












