Арбатский шик
Квартира расположена в историческом центре Москвы, непосредственно на ул. Арбат, в клубном доме Turandot Residences.
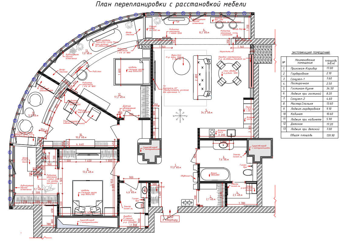
Владельцы — семейная пара с ребенком — обратились с просьбой реализовать сложный проект: жилое помещение, имеющее форму четверти круга, с непрерывным остеклением по радиусу и достаточно большим вертикальным коробом с коммуникациями в центре квартиры.
Перед дизайнером Татьяной Щегловой стояла задача создать уютное и вместе с тем уникальное, неповторимое пространство, учитывающее пожелания каждого члена семьи.
Заказчики хотели видеть респектабельный, люксовый интерьер с впечатляющим эффектом, с большим количеством зеркал, шпона, камня, латуни и качественной итальянской мебелью.
В выборе стиля интерьера дизайнер отталкивалась от желания заказчиков создать атмосферу особого уюта и достичь ощущения роскоши, при этом не уходя в излишнюю декоративность. Также пришлось учитывать любовь заказчицы к сложному оттенку зеленого цвета, который гармонично вписался в зону личного пространства: мастер-спальню и санузлы.
Кухня-гостиная. Зоны разделены между собой с помощью освещения, но в то же время представляют собой одно целое за счет единой цветовой гаммы. Стены украшены шпоном ореха и камнем.
Диван Gamma, Италия, Стулья в гостиной Calligaris, Италия, cтол журнальный в гостиной Eichholtz, Нидерланды, Кухня Giulia Novars, Россия
В интерьере преобладают карамельно-шоколадные и графитовые оттенки, а основной акцент приходится на зеркальные поверхности, камень и шпон из древесины ореха, который придает комнатам ощущение уюта и благородства.
Комната девочки. Нежная, светлая и уютная спальня с кроватью по центру. Вдоль стены — симметричные молдинги, Центральное местов них занимает солнечная картина Галины Чувиляевой.
Также внимание привлекает панно из обоев с растительным рисунком,
Фотообои «Райский сад» в стиле шинуазри, бренд Ортограф, Россия,
Нежные формы фарфора с птичками: Sagarti, Россия
Диван в детской: Innovation Living, Дания
Кровать изготовлена на заказ компанией «Mamsy».
Стул к рабочему столу: Calligaris, Италия
Остальная мебель изготовлена на заказ по эскизам дизайнера.
В кабинете предпочтение отдали более темным, насыщенным оттенкам. Кожаные панели и собранная вручную веерная раскладка редкого шпона на фасаде мебели делает помещение респектабельным и не повторимым. Шпон Палдао Тихоокеанский Орех.
Невероятно красивый письменный стол привлекает своими радиусными формами и глубоким лаком на черном цвете, Производитель Arterios, Модель Victoria Desk.
Небольшую лоджию при кабинете также удалось сделать интересной за счет геометрической игры зеркал и рисунка керамогранита. Помещение получилось истинно мужским.















