ATTIC HOUSE
Небольшой уютный дом для молодой семьи вблизи Кишинёва расположен на участке с крутым уклоном.
Дом экологичный — он построен из деревянных конструкций, покрыт фальцевой кровлей, подчеркивающей минималистичность и простоту формы дома.
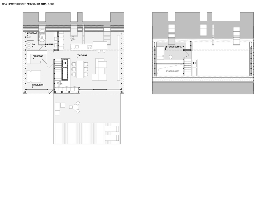
Дом-чердак — это уютное пространства без стен и потолка, где много света и откуда можно наблюдать за облаками.
Северный фасад — это крутой скат кровли, изрезанный длинными окнами, откуда открывается вид на зеленые холмы молдавских полей.
С южной стороны дома небольшой закрытый двор с бассейном и террасой, переходящей в гостиную. Гостиная, объединенная с кухней и столовой, — главное пространство дома, где высота в скате достигает 6 м.
Отделка помещений и мебель выполнены из природных материалов и цветов. Предметов минимальное количество, текстиль грубый этнический.




















