Множественный выбор
Выбрать номинацию

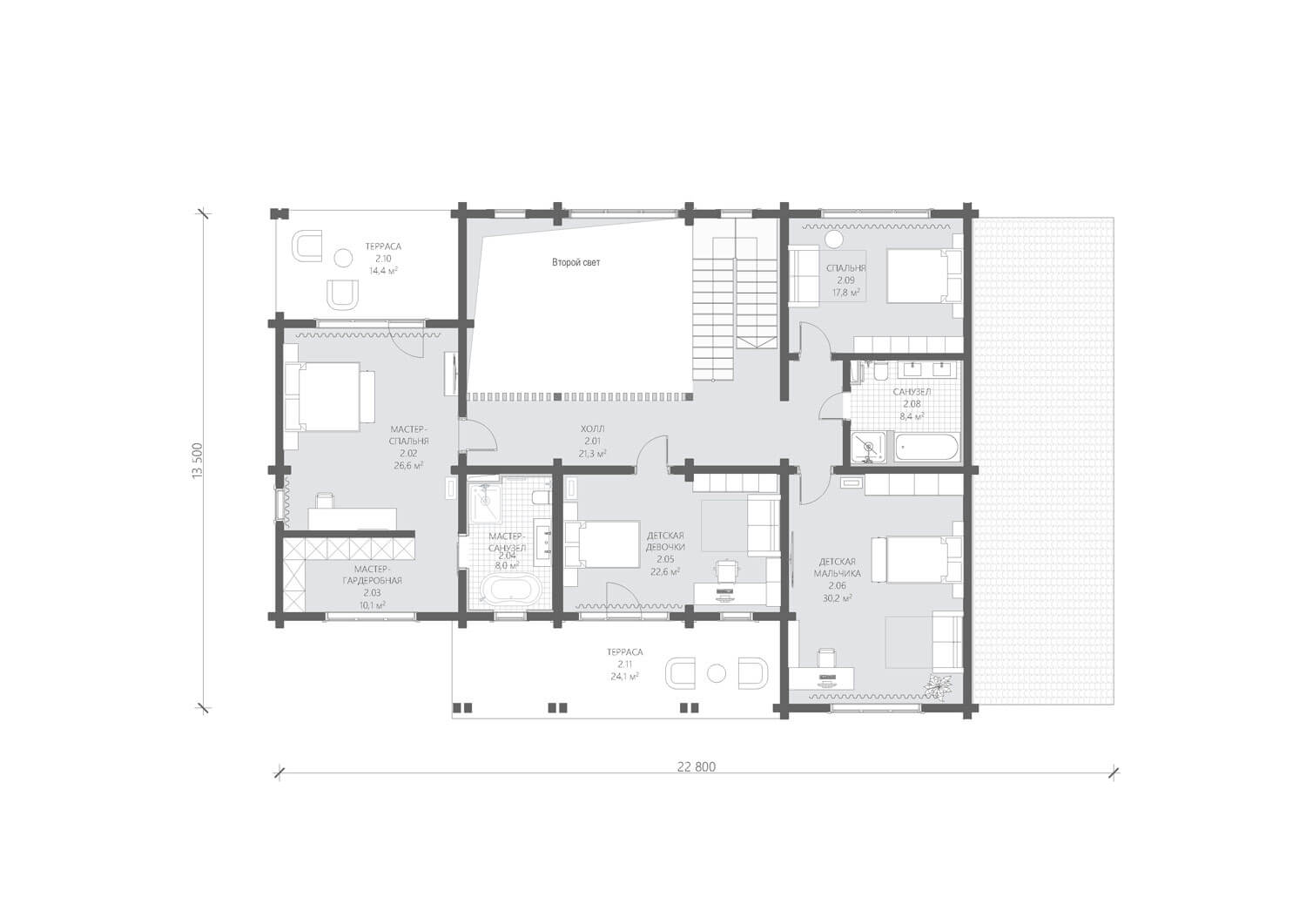
Авиталь

Двухэтажный загородный дом площадью 514 м² в стиле современного шале разработан для семьи из 4 человек. Сочетание натурального дерева и контрастных деталей серого цвета придает внешнему облику дома особую графичность. Завершают образ видовые стропила и декоративные перголы. Широкое парадное крыльцо придает дому особую респектабельность. А продуманная планировка позволяет расположить комнаты максимально удобно и функционально. Так, на первом этаже в правой части размещены технические помещения и гараж, а в левой находится общая зона, включающая кухню, столовую и гостиную со вторым светом. На втором этаже находятся гостевая и детские комнаты, мастер-спальня с отдельной ванной и две террасы. Выход на них расположен в детской и главной спальне. Проект сочетает в себе практичность, комфорт и современную эстетику.

Выставка конкурсных проектов
ВЫСТАВКА КРАСИВЫЕ ДОМА - 2026

ФОТОГАЛЕРЕЯ
ЭКСПОЗИЦИИ
КОНКУРСНЫХ
ПРОЕКТОВ

КАК ЭТО БЫЛО
Выставка конкурсных проектов проходит дважды в год (Весна | Осень)

Отзывы

Можно использовать **жирный**, *курсив*, [ссылку](https://example.com), списки через - или 1.
Пока отзывов нет. Будьте первым.