Множественный выбор
Выбрать номинацию

Банно-спортивный комплекс

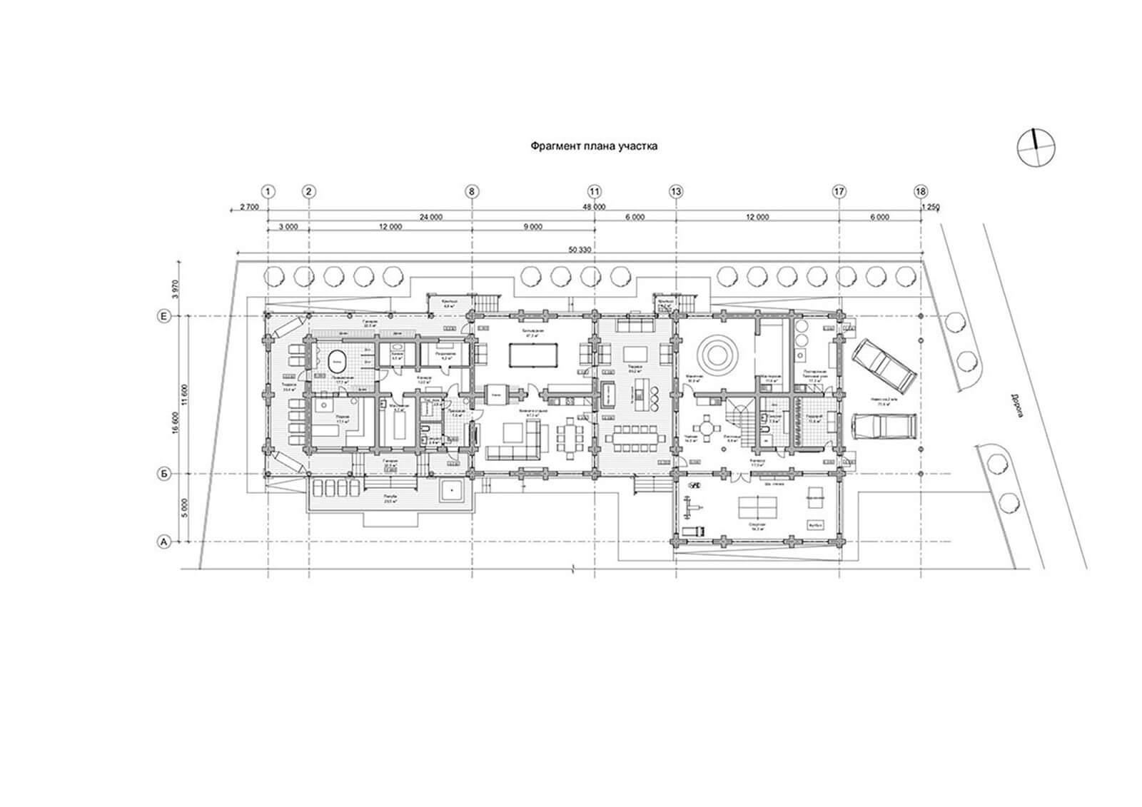
Банно-спортивный комплекс с рублеными стенами в деревне Новотоксово Ленинградской области.

Банно-спортивный комплекс запроектирован для круглогодичного использования в деревне Новотоксово Ленинградской области на участке с уклоном в сторону озера. Банно-спортивный комплекс в большей части одноэтажный, в сочетании с небольшой двухэтажной частью; с совмещенной скатной кровлей, без подвала. Архитектурное решение образа банно-спортивного комплекса — объемно-пространственная композиция, горизонтальной направленности, подчеркнутая линиями кровель, архитектурными элементами и деталями, сочетающая современное видение с традициями деревянной архитектуры. Широкие, относительно пологие крыши (21°) объединяют и зрительно и фактически занижают объем и усиливают его связь с ландшафтом. Под карнизами, под террасами и галереями предусмотреть декоративную подсветку в темное время суток.

Банно-спортивный комплекс состоит из двух функциональных групп помещений, объединенных в единый объем (ансамбль) общей террасой:
• банный блок с отдельным входом;
• спортивный блок с отдельным входом.

Банный блок включает крыльцо главного входа; прихожую с вешалкой; туалет; комнату отдыха; бильярдную с выходом на заднюю галерею с дровником; раздевалку; помывочную с душевыми, бочкой и с выходом на малую террасу с видом на озеро; массажный кабинет; русскую парную; хаммам, помещение для парогенератора. Также комната отдыха и бильярдная имеют выходы на главную крытую террасу, единую для банного и спортивного блоков. Главная терраса остеклена с северной стороны.

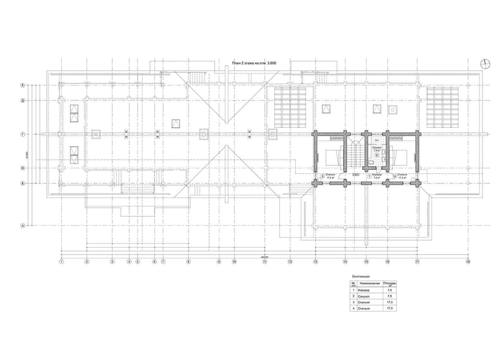
Спортивный блок. На 1-м этаже — тренажерный зал; прихожая (коридор) с вешалкой; гардеробная (с местом хранения уборочного инвентаря); тепловой узел с постирочной; санузел с душем и инфракрасной кабиной; макетная с мастерской и помещение для отдыха (чайную); на 2-м этаже — две спальни и санузел с душем. Из спортивного блока предусмотрен выход на главную крытую террасу, единую для банного и спортивного блоков. Кроме того, при банно-спортивном комплексе запроектирован навес на два машино-места.

Выставка конкурсных проектов
ВЫСТАВКА КРАСИВЫЕ ДОМА - 2026

ФОТОГАЛЕРЕЯ
ЭКСПОЗИЦИИ
КОНКУРСНЫХ
ПРОЕКТОВ

КАК ЭТО БЫЛО
Выставка конкурсных проектов проходит дважды в год (Весна | Осень)

Отзывы

Можно использовать **жирный**, *курсив*, [ссылку](https://example.com), списки через - или 1.
Пока отзывов нет. Будьте первым.