Баня бутик-отеля Forest and Water
Проект бани является частью проекта гостевых вилл в Тверской области на берегу Рыбинского водохранилища выполнен с главной миссией – созданием для гостей уединенной и расслабляющей атмосферы, местом восстановления сил и оздоровления, благодаря уединенной атмосфере природной локации.
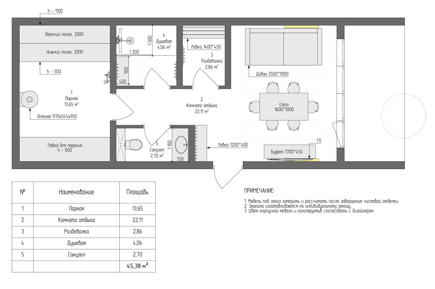
Внутреннее убранство бани поделено на зону парной, душевую, раздевалку, санузел, комнату отдыха с выходом на террасу где расположены купели с подогревом на открытом воздухе с видом на Рыбинское водохранилище. Прихожая является частью комнаты отдыха.
Основное напольное покрытие плитка из натурального черного сланца с активной фактурой для приятных ощущений во время пребывания в бане. В каждом помещении предусмотрены теплые полы для поддержания плюсовой температуры в любое время года.
На стенах и полоках применен термоабаш, также в основные помещения интегрированы 3д панно из можжевельника. Вставки из гималайской соли подсвечены теплой подсветкой, создавая приглушенную, мягкую атмосферу. Главным фокусным материалом в проекте бани является камень и печь облицованная плиткой из окаменевшего дерева. Плитка и мозаика из талькомагнезита применены на стенах в парной, душевой, комнате отдыха и санузле. Этот минерал издает лучистое, бархатное тепло, которое расслабляет организм и благотворно действует на состояние здоровья. Под воздействием тепла от талькомагнезита возможно существенно уменьшить проявления или полностью излечить многие заболевания.
Основная цветовая гамма интерьера — это оттенки бежевого теплого дерева в сочетании с акцентными серо-черными тонами натурального камня.
Благодаря использованным в проекте материалам оформление бани наполняется великолепием фактур и текстур, а также неотъемлемыми лечебными и приятными ароматами этих материалов. Они благотворно воздействуют на саму философию банных процедур, создавая атмосферу гармонии и релаксации. Каждый элемент интерьера обретает жизнь, приглашая посетителей погрузиться в мир чувства уюта и восстановления. Тонкие ноты древесины, нежные оттенки тканей и естественные ароматы целебных трав переплетаются, формируя уникальную симфонию, которая не только радует глаз, но и исцеляет душу. В этом пространстве оживает древняя традиция, где банные процедуры становятся не просто ритуалом, но и священным актом, способствующим глубокому очищению и гармонизации тела и разума.














