Баня Горизонталь
Баня запроектирована для круглогодичного использования, одноэтажная, с совмещенной односкатной кровлей без подвала. Расположение, размер и форма бани продиктованы ориентацией сторон света, расположением существующего жилого дома и заданием на проектирование.
Архитектурный образ бани горизонтальной направленности, линейного типа, с функциональным зонированием на общественно-гостевые и приватные зоны. Объем бани визуально разделен на два уровня, первый уровень бревенчатый из сухостойной сосны Kelo и второй каркасный, с комбинированием остекленных и глухих частей. По главному фасаду кровля на террасе опирается на горизонтальные клееные балки, увязанные между собой металлическими затяжками.
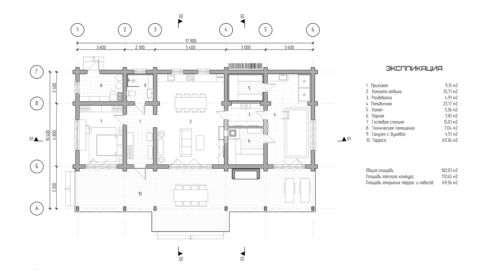
По главному фасаду расположена крытая, неостекленная терраса, на которую выходят панорамные окна-гармошки, которые позволяют объединить внутреннюю часть бани с уличной в единое целое. На террасе расположены печь-барбекю, столовая группа и зона принятия солнечных ванн. В бане — прихожая со шкафом для верхней одежды, открытой вешалкой и банкеткой, санузел с душевой, комната отдыха с кухней и столовой группой на 8 персон, зоной просмотра ТВ и топкой от банной печи, раздевалка с системой хранения банных принадлежностей, стиральной машиной, открытой вешалкой, помывочная с купелью, душевой и обливным устройством, хаммам, парная, гостевая спальня с двуспальной кроватью, шкафом и рабочим столом, котельная.
Основные строительные материалы
Фундамент — монолитная железобетонная плита с ростверком.
Наружные стены — бревенчатые, d = 280 мм, сухостойная сосна KELO.
Внутренние стены — бревенчатые, d=280 мм, сухостойная сосна KELO.
Перегородки каркасные, кирпичные.
Перекрытия первого этажа, стяжка по железобетонной плите с эффективным утеплением из ЭППС и теплым полом.
Стропила из деревянного бруса ,70 x 200 мм.
Кровля — открытая деревянная стропильная конструкция с покрытием из битумной черепицы.











