Баня из новозеландской термососны с двумя печами
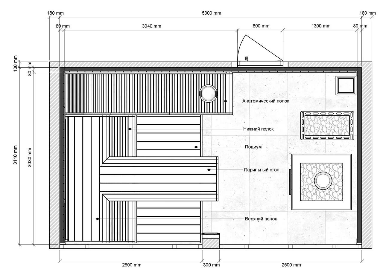
Основным материалом отделки парного помещения является брутальная и благородная древесина премиальной новозеландской термососны. Темная древесина дополнена слэбом черного мрамора и большой стекло конструкцией по левой стороне бани.
Комбинирующую светосхему помещения рисуют вставки светлой древесины ольхи на полках. Полки в помещении расположены г-образно, вытекая в парильный стол посередине помещения. Справа от парильного стола расположился анатомический полок, повторяющий естественные изгибы тела человека.
Темные тона древесины разбавляют вставки из подсвеченной гималайской соли – красота и терапевтический эффект в деталях.
В проекте установлены 2 печи – дровяная Домна и электрическая Harvia Profi.
Для удобства и практичности мы установили автоматический веникозапариватель в углу бани.







