Баня Русская Австралия
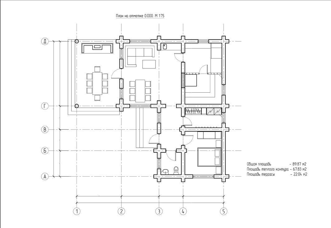
Настоящая печь для русской бани, холодная купель, гостиная и открытая терраса созданы для комфортного отдыха семьи. Единственное, чему не нашлось здесь места, — телевизору, но есть приятное дополнение: гостевая спальня.
Площадь бани — 89,9 м² (помещений 67,9 м², террасы 22 м²).
Дополнительное оснащение — банная печь, электрика, отопление, купель, сантехника, встраиваемая мебель, предметы интерьера, архитектурное освещение.
P.S. Почему «Русская Австралия»? Все дело в сочетании Кело, кедрового потолка, кровли и террасы из сибирской лиственницы с австралийской авторской мебелью из кокосовой пальмы.
Отзывы
Пока отзывов нет. Будьте первым.












