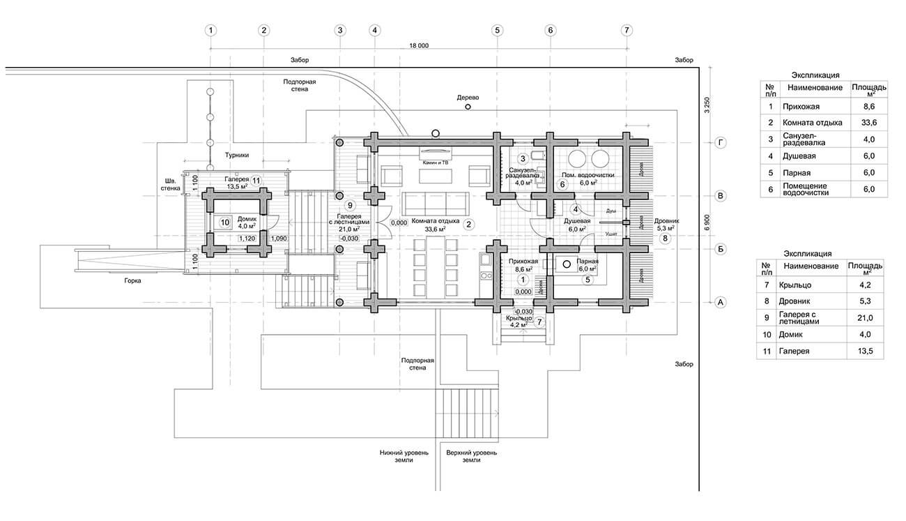
Баня с детским комплексом в д. Рыбаки
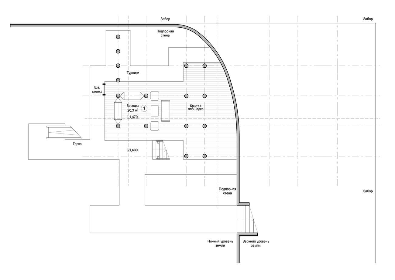
Баня с детским комплексом рассчитана для круглогодичного использования в деревне Рыбаки Московской области. Участок со сложным рельефом с перепадом высот и подпорной стенкой, поэтому часть бани располагается на опорах, благодаря чему детский комплекс получился двухуровневым.
Комплекс включает в себя домик для игр с обходной галереей на верхнем уровне и беседку под ним с зоной отдыха, гамаком и диванчиками. Рядом предусмотрена зона для игры, шведская стенка и турники.
В бане располагаются прихожая с вешалкой, топкой банной печи и дровником, туалет с раздевалкой, помывочная с душем и ушатом, парная. В комнате отдыха есть мини-кухня, барная стойка и стол на 8 человек. На выходе из комнаты отдыха начинается крытая галерея с лестницами, ведущая на верхний уровень к домику для игр, другая спускается к беседке.
Основные материалы и конструкции:
- Стены бревенчатые рубленые, Kelo диаметром 300 мм;
- Фундамент: монолитная железобетонная плита на верхнем и нижнем уровне (переменной глубины заложения);
- Устройство крыши: деревянная стропильная конструкция с эффективным утеплителем;
- Покрытие кровли металлическое, фальцевое.








