Баня в деревне Аржаники
Баня запроектирована для круглогодичного использования в ур. Кардон Шараповского с/округа Смоленской области на участке со спокойным рельефом. Баня переменной этажности (от одного до двух этажей) с совмещенной скатной кровлей, без подвала.
Основные строительные материалы и конструкции:
• фундамент — монолитная железобетонная плита;
• цоколь — кирпичный толщиной 380;
• пол — по армированной стяжке по керамзиту;
• стены — бревенчатые рубленые, диаметром 300 (KELO);
• устройство крыши — деревянная стропильная конструкция с эффективным утеплителем;
• покрытие кровли — металлическое фальцевое.
Архитектурное решение образа бани — объемно-пространственная композиция горизонтальной направленности, подчеркнутая линиями кровель, архитектурными элементами и деталями, сочетающая современное видение с традициями деревянной архитектуры. Широкие, относительно пологие крыши объединяют, а также зрительно и фактически занижают объем и усиливают его связь с ландшафтом.
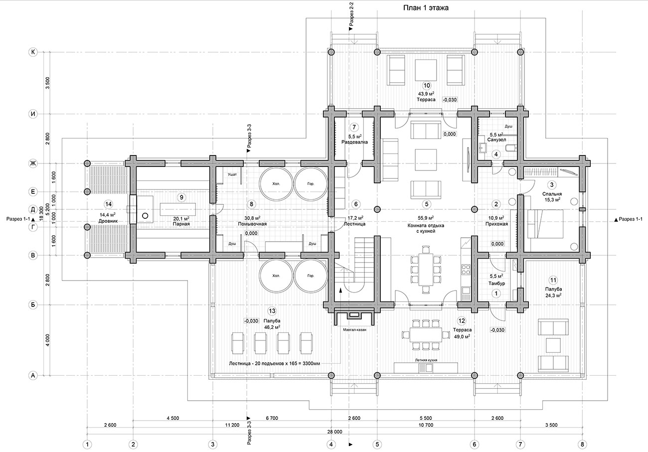
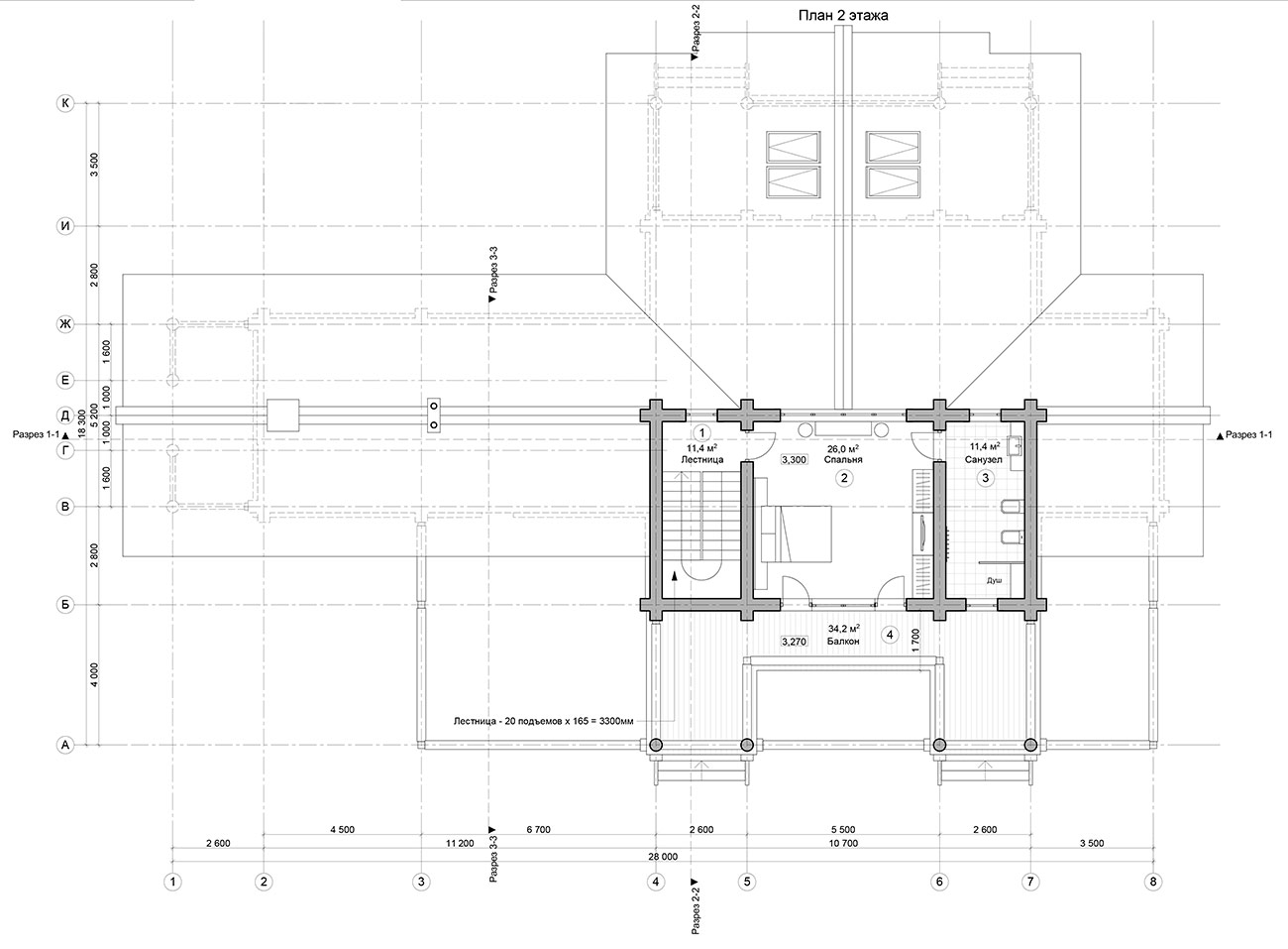
Планировка бани выполнена в соответствии с исходными данными и заданием на проектирование, с учетом функционального зонирования помещений. На 1-м этаже располагаются входной тамбур, прихожая, санузел, гостевая спальня, комната отдыха с мини-кухней, обеденным столом и диваном, раздевалка, помывочная, парная, топочная с дровником, а также крытые не остекленные террасы и открытые палубы. На 2-м этаже запроектирована хозяйская спальня со своим санузлом и балконом.
Общая площадь помещений (без террас, палуб, дровника и балкона) составляет 215,5 м², площадь террас, палуб, дровника и балкона 212 м². Площади указаны на планах и в экспликации.
Инженерное обеспечение бани: водопровод и канализация, отопление, вентиляция естественная (в санузлах с установкой канальных вентиляторов), электроосвещение и электрооборудование, телевидение, телефон и интернет.










