Бассейн и баня в п. Красная Горка
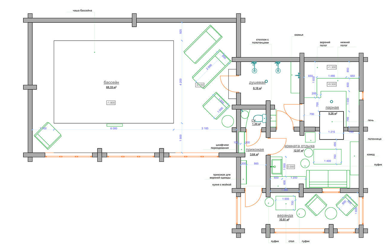
Проект бани с бассейном для заказчика из Санкт-Петербурга. В коттеджном поселке на территории участка с домом заказчик строит баню с бассейном из лафета лиственницы и кедра. Зона банного комплекса помещений выполнено из кедра, а стены бассейна — из лиственницы. В составе помещений бани — комната отдыха с кухней, санузел, парная и душевая. Выход в бассейн расположен из зоны душевой прямо в зону лежаков при бассейне. Над ними расположены инфракрасные лампы для прогрева этой зоны. Витражи бассейна принимают важную функциональную нагрузку — могут полностью раздвигаться, чтобы организовать своеобразную открытую террасу, где на траве перед баней можно размещать лежаки и кресла.
Архитектура бассейна подчеркивается освещением балок и скатов кровли, их ритм дает декоративный эффект, органично усложняя композицию помещения, не привнося туда инородных материалов или элементов. Витражные окна пропускают много света и дают воздуха в помещение, раскрывают вид на ландшафт участка.
Чаша бассейна как главный элемент композиции выделена прямоугольной стеклянной мозаикой с различными оттенками голубого и цвета морской волны, этот явный цветовой акцент погружает и привлекает внимание посетителя. При наполненной чаше и включенном освещении бассейна стеклянная мозаика дает оригинальные блики и переливы, создавая визуальною игру цвета и его оттенков. В контраст к чаше пол выполнен из белой плитки с вставками цвета чаши, создавая ощущение чистоты и воздушности интерьера. Плетеное подвесное кресло, растения в интерьере придают ему домашнего уюта и определенного деревенского шарма.






