Множественный выбор
Выбрать номинацию

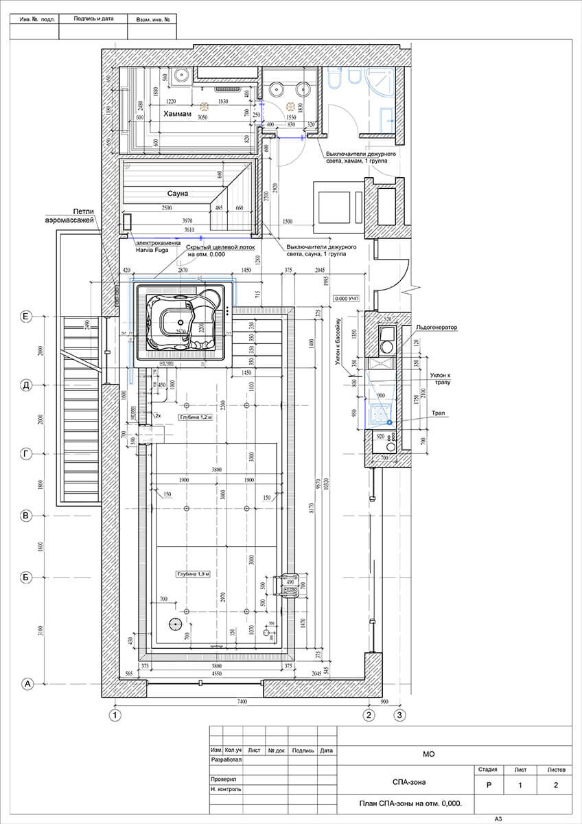
Бассейн с гидромассажной ванной

Частный оздоровительный бассейн + гидромассажная ванна Jacuzzi Virginia Experience.

Бассейн прямоугольной формы. Бетонная лестница для входа в бассейн находится в нише, рядом с гидромассажной ванной.

Особые пожелания заказчика — предусмотреть щелевой трап по периметру гидромассажной ванны со стороны пола.

В ходе работы менялись архитектурные отметки полов в помещении, производилась доливка бортов чаши.

Параметры бассейна (ширина х длина х глубина, емкость): 10,3 х 3,8 м, глубина 1,2–1,9 м. Объем ~53 куб.м.

Использованные отделочные материалы: мозаика. Готовая чаша из композитных материалов (ванна Jacuzzi).

Водоподготовка бассейна: фильтрTechnol C600-9 (Словения) — 1 шт.; 6-позиционный клапан Peraqua Praher (Австрия); насос Badu 90/15 (Германия); теплообменник Bowman 40 кВт (Великобритания); автоматическая станция дозации реагентов OSF WaterFriend chlor MRD-3 — 1 шт. (Германия); блок управления фильтрацией и нагревом OSF Pool-Control-400-ES (Германия); блок управления переливной емкостью OSF NR-12-TSR-2 (Германия).

Водоподготовка гидромассажной ванны: фильтр Technol Larix 510 — 1 шт.; 6-позиционный клапан Peraqua Praher; насос Badu 90/7 ; теплообменник Bowman 40 кВт; автоматическая станция дозации реагентов OSF WaterFriend chlor MRD-3 — 1 шт.; блок управления фильтрацией и нагревом OSF Pool-Control-400-ES; блок управления переливной емкостью OSF NR-12-TSR-2.

Дополнительное оборудование, аксессуары: акриловый гидромассажный мини-бассейн Jacuzzi Virginia Experience (Jacuzzi, Италия); прожектор светодиодный, белый 24 х 3 Вт — 3 шт. (HugoLahme, Германия); гидромассаж Standard на 4 форсунки — 1 компл. (HugoLahme); противоток Taifun Duo — 1 шт. (HugoLahme); водопад Rondo 500 — 1 шт. (HugoLahme); донный аэромассаж «гейзер» — 1 шт. (HugoLahme).

Отделка пространства вокруг бассейна (пол, стены, потолок) выполнена заказчиком.

Выставка конкурсных проектов
ВЫСТАВКА КРАСИВЫЕ ДОМА - 2026

ФОТОГАЛЕРЕЯ
ЭКСПОЗИЦИИ
КОНКУРСНЫХ
ПРОЕКТОВ

КАК ЭТО БЫЛО
Выставка конкурсных проектов проходит дважды в год (Весна | Осень)

Отзывы

Можно использовать **жирный**, *курсив*, [ссылку](https://example.com), списки через - или 1.
Пока отзывов нет. Будьте первым.