Множественный выбор
Выбрать номинацию

BDB Home

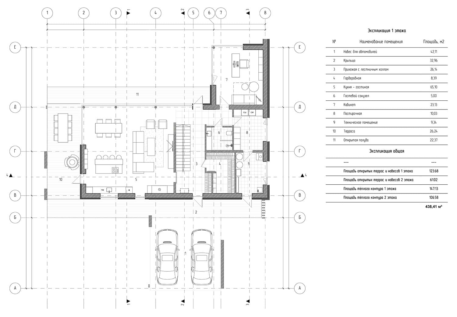
Расположение дома на участке обусловлены ориентацией по сторонам света, подъездной дорогой и расположением существующих зеленых насаждений. Основным акцентом участка стали две крупные ели, расположенные в его центре; деревья сохранили, хотя они ограничивали место под проектируемый дом.

Внешний облик дома сдержанный, с минимальным остеклением со стороны дороги и северной границы участка, а в южной и дворовой части выполнено панорамное остекление, которое фактически объединяет весь участок с внутренним пространством дома.

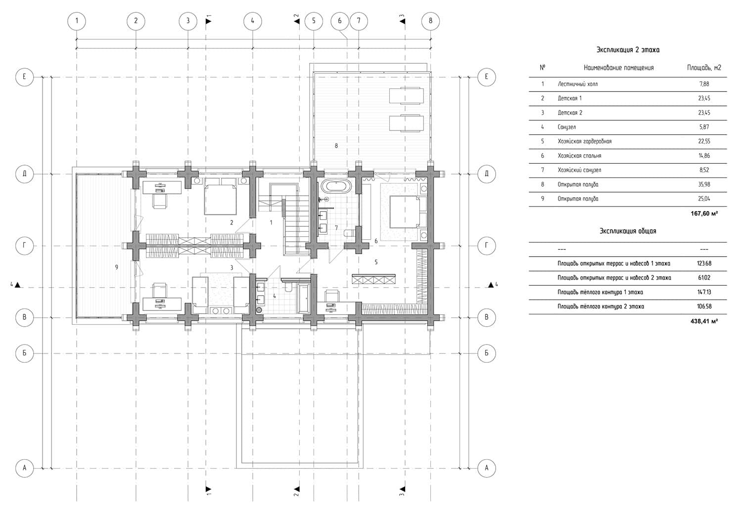
Планировка дома решена на двух уровнях, учтено функциональное зонирование помещений на общественно-гостевые (первый этаж) и приватные (второй этаж).

Архитектурный образ дома построен на сочетании необработанных натуральных материалов и сдержанных конструктивных элементов дома.

Первый этаж каменный, по всему периметру его опоясывает кант из ржавого металла, частично проходящий горизонтальной линией по уровню перекрытия и спускающийся вертикально на стены, собирая весь объем дома в единое целое.

Второй этаж бревенчатый, из сухостойной сосны Кело, с плоской кровлей по деревянным балкам, которые словно пронизывают бревенчатый объем. Большие карнизные свесы кровли визуально и фактически занижают общий объем постройки.

Выставка конкурсных проектов
ВЫСТАВКА КРАСИВЫЕ ДОМА - 2026

ФОТОГАЛЕРЕЯ
ЭКСПОЗИЦИИ
КОНКУРСНЫХ
ПРОЕКТОВ

КАК ЭТО БЫЛО
Выставка конкурсных проектов проходит дважды в год (Весна | Осень)

Отзывы

Можно использовать **жирный**, *курсив*, [ссылку](https://example.com), списки через - или 1.
Пока отзывов нет. Будьте первым.