Богатырский
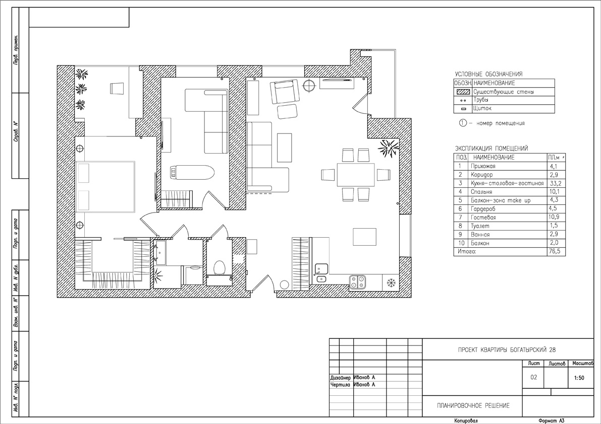
Квартира площадью 76 м², оформленная в современном стиле, находится в Санкт-Петербурге.
Перед авторами проекта стояла задача создать интерьер из натуральных материалов. Необходимо было объединить кухню-столовую и гостиную в общее пространство, а гардероб сделать отдельным помещением, разместив в нем большое количество систем хранения.
Интерьер получился светлый и уютный, с элементами минимализма. В основе дизайна лежит сочетание мрамора, натурального дерева и графичных черных элементов.
Планировочным решением предусмотрено деление квартиры на несколько зон: личную (спальня, гардероб, зона make up) и общественную (кухня-гостиная-столовая). Между ними находятся санузлы и гостевая.
Отзывы
Пока отзывов нет. Будьте первым.








