Частная вилла THE MONOLITH
Вилла THE MONOLITH спроектирована в районе Первомайский, село Фирсово, Алтайский край, для молодой семьи из четырех человек.
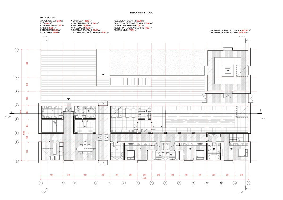
Общая площадь здания: 1273,28 кв.м.
Основной идеей данного проекта является уход от привычных шаблонов современного частного домостроения. Главная задача — создание уникального образа, монументальной доминанты, которая гармонично вписывается в аскетичный ландшафт.
Вилла располагается на большом пустынном участке. Три усеченных пирамидальных объема образуют цельную композицию, каждый из корпусов виллы является продолжением другого. Перетекание форм в разных плоскостях создают неповторимую архитектуру, которая открывается с каждой видовой точки по-разному. Каждый корпус объекта имеет разную высотность. Наивысшей точкой является павильон с открытым камином.
Конструктив здания — монолитный железобетон. Единственным материалом во внешней отделке виллы является темный кирпич, который подчеркивает брутальный образ здания и наиболее ясно выявляет его архитектурное решение.
Вилла спроектирована таким образом, что часть остекления находится на южном фасаде, куда ориентированы все жилые помещения. Также над основными помещениями располагаются большие световые фонари — окулусы. Благодаря такому приему остекления не нарушается целостность форм и сохраняется большой процент инсоляции.
В основе планировочного решения лежит выявление архитектурной формы здания в интерьере и организация комфортного функционального зонирования. На первом этаже располагаются помещения гостиной, кухни и гардеробной в первом блоке. Второй блок представляет собой бассейн, тренажерный зал и жилые комнаты. Третий объем — открытое пространство с каминной зоной. На втором этаже — антресоль, которая является частью гостиной зоны, и комната отдыха при главной спальне. Цокольный этаж включает в себя гараж, технические помещения и пространства для проведения досуга: винный погреб, кинотеатр, бильярдную, библиотеку, мастерскую при главной спальне.
Вилла THE MONOLITH — атипичное архитектурное решение для объектов частного домостроения, которое создает гармонию между человеком, природой и искусством.












