Частный бассейн в пригороде Минска
Дом построен для отдыха и приема гостей. В интерьере много света, цвета и декоративных поверхностей.
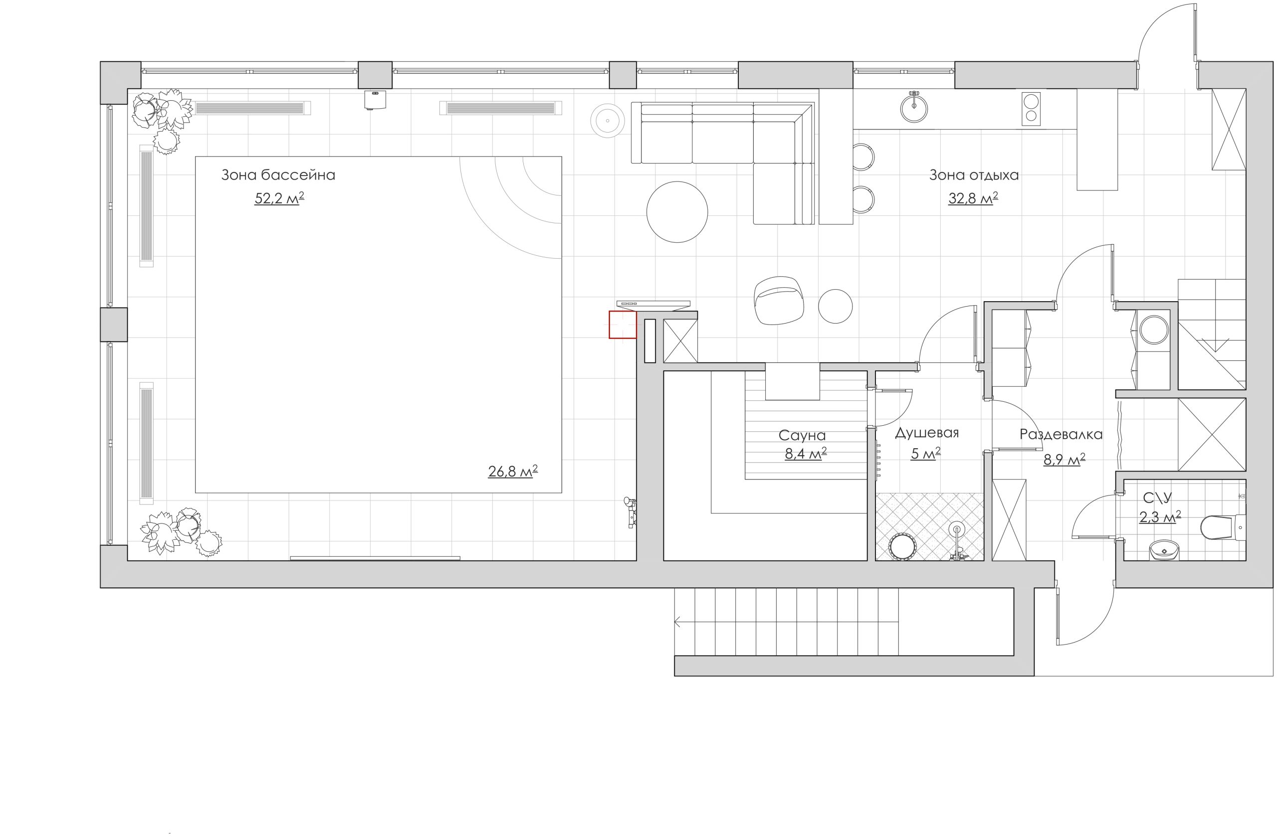
Бассейн с сауной расположен в отдельно стоящем доме. На первом этаже находятся бассейн, сауна, мини-кухня, раздевалка и санузел.
На втором этаже расположены гостевые комнаты и санузел.Основная идея оформления интерьера — максимальные удобство, функциональность и лаконичность.
Параметры бассейна: 4,6 х 5,6 х 1,6 м. Объект находится на стадии реализации
Материалы: • плитка керамическая (стены, полы) • ламинат (потолок) • обои (входная зона) • искусственный камень.
Оборудование:
Фильтрация и блок управления: • щит управления фильтровальной станцией и теплообменником • автоматический многопозиционный вентиль на фильтр, ASTRAL • фильтр ASTRAL ASTER 450 • насос ASTRAL VICTORIA PLUS PUMP 1/2 • кварцевый песок 0,8-1,2 • трубы и фитинги для фильтрации ПВХ.
Закладные детали в чашу бассейна (нерж.): • скиммер с регулятором уровня воды универсал • донный слив D=155 мм универсал • форсунка возврата воды, стеновая, универсал.
Автоматика: • дистанционное управление Aqualink TRI, Wi-Fi • автоматический долив воды в бассейн.
Подогрев воды в бассейне: • теплообменник Elecro G2 49 кВт • клапан электромагнитный 1 нормально закрытый • насос Grundfos первичного контура.
Подводное освещение (нерж.): • прожектор ASTRAL цвет. диодный с закладной • шланг гофрированный с подсоединением к прожекторам • трансформатор 150 Вт/12 В • короб распаячный нерж. • блок управления + пульт дистанционного управления.
Искусственное течение: противоток Fastlane Endless Pools, Inc. 1140 м3/ч.
Дезинфекция воды: • генератор озона • камера дегазации избыточного озона • автоматическая станция обработки воды Zodiac pH Perfect • автоматическая станция обработки воды Zodiac Chlor Perfect • ультрафиолет SP-4 мощность 85 Вт, 220 В.
Подводный очиститель: автоматический робот-пылесос для бассейнов.
Покрытие бассейна: автоматическое, защитное покрытие для бассейна.
Аттракционы
Гейзер: плато аэромассажное из нерж. стали 400х400-2 • компрессор низкого давления HSC0210-1MA151-1 • блок управления гейзером • пневмокнопка с накладкой нерж. • капиллярная трубка п/м • адаптер для подключения пневмокнопки нерж. • трубы и фитинги ПВХ д. 63 Испания.
Водопад: • 7 водопад нержавейка Кобра 500 • блок управления водопадом • желоб водозабор • насос для водопада Kripsol KS-150, 22 м3, 220В 1,1 кВт • пневмо-кнопка с накладкой нерж. • капиллярная трубка п/м • трубы и фитинги ПВХ д. 63 Испания.
Гидромассаж на две форсунки: • форсунка гидромассажа с накладкой нерж. Waterway • насадка регулируемая к форсунке гидромассажа Waterway • накладка из нерж. стали для форсунки гидромассажа Waterway • блок управления гидромассажем • насос (30 м³/ч 220В) Kripsol Kapra KS-300 380В, 2,2 кВт • регулятор доступа воздуха с накладкой нерж. • желоб водозабор нержавейка D-155 • пневмокнопка с накладкой нерж. • капиллярная трубка п/м • адаптер для подключения пневмокнопки нерж. • трубы и фитинги ПВХ д. 63 Испания.





