Частный дом 100+ в Ростове-на-Дону
Стояла задача разработать небольшой дом для семьи, чтобы он был построен быстро, имел качественную современную архитектуру и возможность расширения площади за счет дальнейших пристроек. Итогом стал дом ангарного типа в стилистике голландской архитектуры, выполненный по металлокаркасу на легком фундаменте.
Два фасада — полностью стеклянные алюминиевые витражи, все остальные поверхности крыши и стен в фальцевом металле, заполнение стен — газоблок, в фасадах фрагментарно использован клинкерный кирпич.
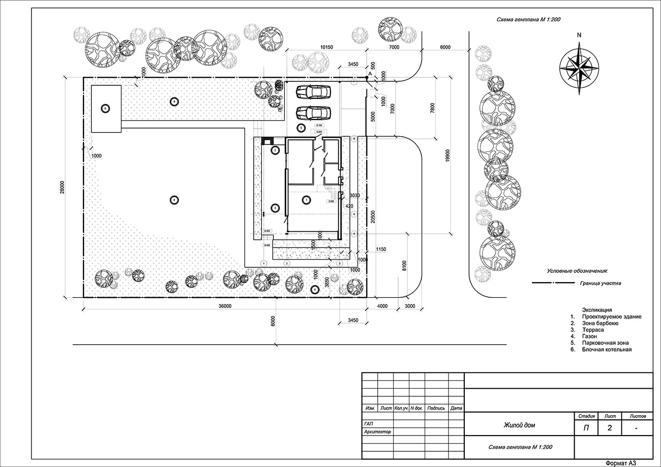
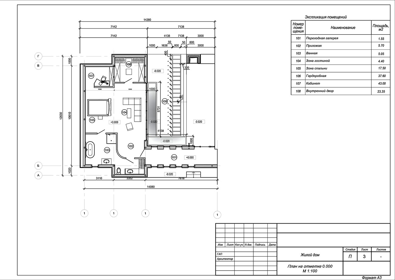
Также запроектировано отдельно стоящее сооружение котельной (топочная и водоподготовка) в «контейнерной» архитектуре, где наклонные части контейнера выполняют роль традиционных кровельных скатов. Когда проект был готов, заказчику понадобилось срочное расширение площади дома, и мы выполнили это за счет одноэтажной пристройки, соединяющейся с основной частью дома через переход, что в свою очередь привело к возникновению новых пространств, в том числе дополнительного внутреннего дворика, куда ориентированы витражные окна двух основных зданий.
В данном проекте важна концепция — дом для молодой семьи, который, как конструктор, можно расширить, увеличить первоначальную площадь, даже уже проживая в основном доме! Структура дома изначально такая, что при возведении дополнительных пристроек архитектура дома не только не пострадает, а, напротив, приобретет новые качества... И конечно же, легкие фундаменты, быстрые сроки строительства — очень актуальные вещи на текущий момент.
Состав семьи: молодая пара с ребенком.
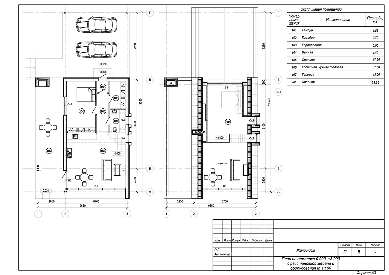
Общая площадь дома — 100 кв.м.
Общая площадь новой пристройки — около 80 кв.м.
Площадь котельной — 25 кв.м.














