Частный дом на побережье Сочи
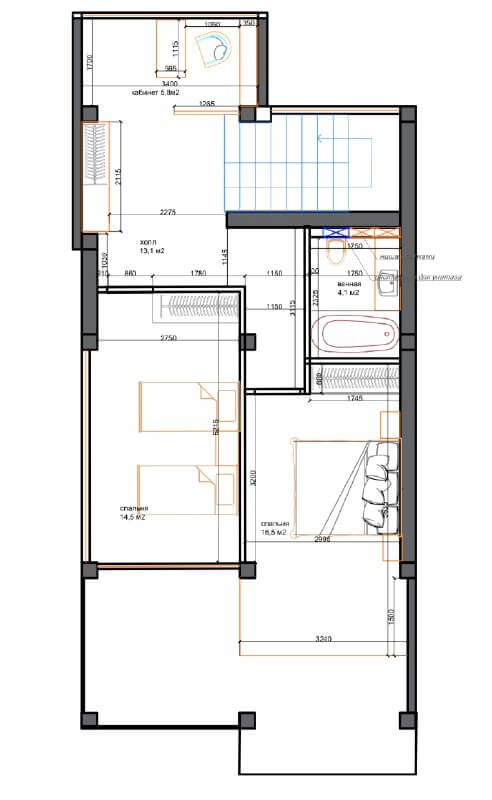
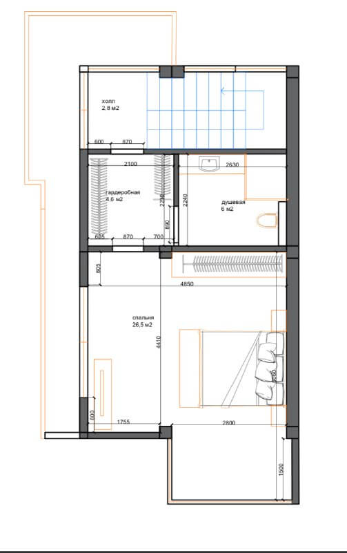
Дом расположен на очень узком участке на склоне горы, поэтому при соблюдении отступов от границ дом вытянут по форме и размещается на трех этажах.
На последнем этаже находятся балкон и смотровая площадка. На первом — гостиная с террасой и с выходом к бесконечному бассейну Infinity pool — это когда плаваешь в переливном бассейне и видишь всю долину.
Фасад дома выполнен из камня белого и сланца темного. Фасад создает четкую геометрию, ощущение куба в кубе, будто собранный кубик Рубика.
Интересным архитектурным решением являются панорамные окна, точнее импосты окон, выделяющиеся части которых направлены не внутрь дома, а наружу и располагаются сплошной линией от -1 этажа до 3 этажа.
Оконные импосты образуют ансамбль с перголами террасы, и двор и дом смотрятся единым целым. Помимо декоративной функции импосты выполняют и практическую, защищая от прямого солнечного света и создавая тень внутри помещений.
Ландшафт вокруг дома организован в виде геометрических многоступенчатых насаждений. Широкие лестничные ступени расширяют узкое пространство, цветочные горшки квадратных форм заменяют перила.












