Частный жилой дом Симфония
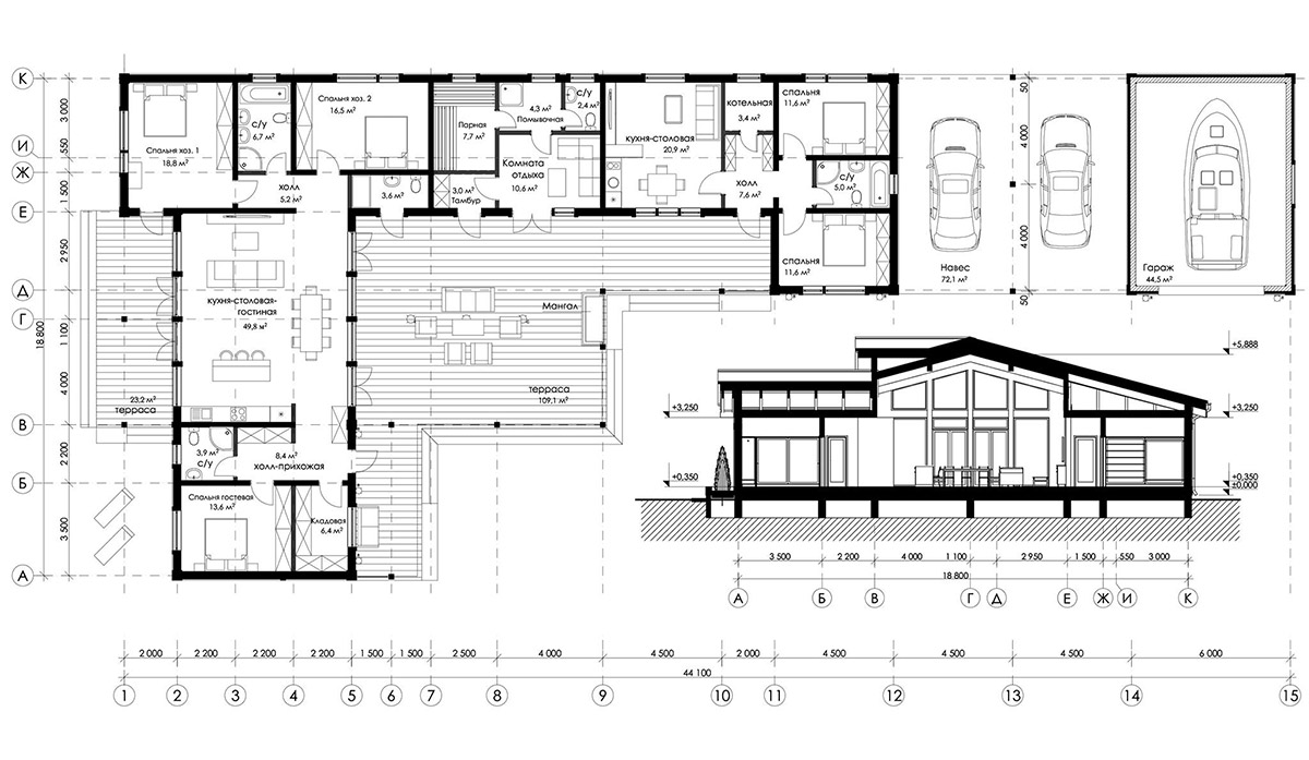
Экологичный, комфортный и функциональный загородный дом скомпонован из нескольких строений. Основной дом, баня, гостевой дом, навес и гараж объединены в одном пятне застройки. Такое решение позволяет наиболее эффективно использовать площадь участка и реализовать индивидуальное времяпрепровождение семьи и гостей.
Идея проекта — гармоничное созвучие материала и архитектуры, человека и природы. На него работают как просторная общая терраса, где хозяева и гости могут вместе провести вечер, так и приватная часть террасы с выходом из спальни хозяев. Эту идею поддерживает многофункциональная основная двусветная гостиная. В гостевой части дома предусмотрено все для короткого или более длительного визита гостей. Гостиная с мини-кухней, две спальни, собственный санузел с ванной. Дом имеет современную сауну, навес для автомобилей и гараж для катера, который может использоваться для любых хозяйственных нужд.
Площадь дома — 265,5 м²
Площадь террас и навеса — 204,4 м²
Площадь общая — 470 м²
В основе конструкции дома лежит технология «вертикальный брус», что позволяет получить теплые стены из натуральной древесины без использования утеплителя и клеевых составов. Фундамент – монолитный, железобетонный. Кровля скатная, покрытие – мягкая черепица.













