Множественный выбор
Выбрать номинацию

D.O.M.+

Дом бизнес-класса D.O.M.+ 124 кв.м
Площадь: 98 кв.м + 26 кв.м терраса

Дом площадью 124 кв. м идеально вписывается в ландшафт, не нарушая гармонию окружающего пейзажа. За основу дизайна взята стилистика 1930–40-х годов.

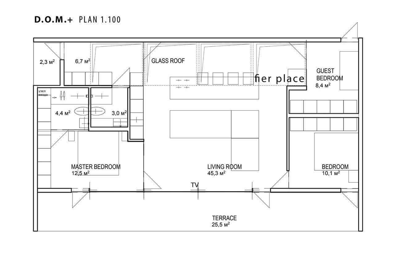
Благодаря линейной планировке в центре дома расположены гостиная, кухня и столовая, по двум сторонам от которых предусмотрены три спальни и ванные комнаты. Вся мебель для резиденции изготавливается строительным способом прямо на месте.

Дом может быть возведен в кратчайшие сроки с использованием промышленных методов проектирования и строительства.

РАЗМЕРЫ ДОМА
Жилая площадь: 98 кв.м + 26 кв.м терраса.
Габаритные размеры: 8,7 х 14,6 м.
Высота потолка: 2,5 м.

СОСТАВ ПОМЕЩЕНИЙ
Главная спальня: 12,5 кв.м.
Спальня: 10,1 кв.м.
Гостевая спальня: 8,4 кв.м.
Гостиная-кухня: 45,3 кв.м.
С/у: 4,4 кв.м.
Гостевой с/у: 3 кв.м.
Терраса: 25,5 кв.м.

ОСОБЕННОСТИ ПРОЕКТА
Каркасная технология 150 х 50 мм.
Гигиенические сертификаты.
Утепление по нормам РФ.
Мультифункциональные стеклопакеты.
Деревянные панели, лессирующий состав, цвет тик

• Выезд монтажной группы.
• Доставка и монтаж на участке.
• Терраса из лиственницы.
• Каркас сухой строганый, утепление с превышением норм РФ.

Пиломатериал: произведен из отборного круглого пиловочника хвойных пород на импортном оборудовании. После принудительной камерной сушки пиломатериал откалиброван в размер строганием и обработан защитным составом на заводе по ГОСТ.

• Фундамент: сваи винтовые.
• Панорамное остекление: каленое стекло, стеклопакет с энергосбережением.
• Стены и двери: клееные панели из березы, гигиенический сертификат, фурнитура — нержавеющая сталь.
• Стеклянные перегородки: каленое стекло 10 мм, прозрачное, фурнитура — нержавеющая сталь.
• Внутренняя отделка: клееные панели из березы.
• Внешняя отделка: клееные панели из березы.
• Коммуникации: разводка водопровода и канализации (Швеция), встроенная электрика, встроенный центральный электрощит, наружное и внутреннее освещение.
• Электрика Schneider Electric (розетки, выключатели).
• Вентиляция: приточные оконные клапана (2 зоны: кухня, с/у).
• Оборудование и сантехника. Ванная комната: умывальник, душ, смесители, унитаз.
• Электрический проточный водонагреватель.
• Теплый водяной пол.

Выставка конкурсных проектов
ВЫСТАВКА КРАСИВЫЕ ДОМА - 2026

ФОТОГАЛЕРЕЯ
ЭКСПОЗИЦИИ
КОНКУРСНЫХ
ПРОЕКТОВ

КАК ЭТО БЫЛО
Выставка конкурсных проектов проходит дважды в год (Весна | Осень)

Отзывы

Можно использовать **жирный**, *курсив*, [ссылку](https://example.com), списки через - или 1.
Пока отзывов нет. Будьте первым.