Дачный дом в духе шале в Подмосковье
Фотограф Кирилл Овчинников, Виктор Чернышов
На участке среди лесных деревьев построен дом из клееного бруса, органично вписанный в окружающую среду. В нем созданы изящные, отмеченные легкой иронией интерьеры - комфортное и непринужденное пространство с неповторимой атмосферой. Этому, в частности, способствует специально спроектированная для данного дома мебель, а также отреставрированные винтажные предметы и аксессуары.
С естественным ландшафтом гармонирует здание в духе швейцарского деревенского дома с фасадами, тонированными под темный орех, и отделанным сланцем цоколем. Выбранному архитектурному стилю соответствуют деревянные окна со ставнями, балконы, широкие свесы и большие выносы крыши, позволяющие обитателям дома защититься от дождя и снега и проводить время на воздухе с ранней весны до поздней осени.
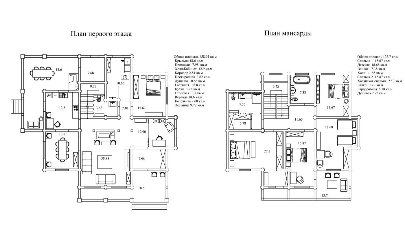
В соответствии с пожеланиями хозяев в доме появились большая гостиная, кухня и столовая, спальни для каждого члена семьи, вместительная гардеробная, прачечная, 3 санузла и большая крытая веранда с печью-барбекю, откуда можно попасть в кухню. Помещения, в зависимости от их назначения, сориентированы на разные стороны света: окна столовой выходят на юг, спальни - на северо-запад, чтобы утреннее солнце не мешало сну, веранда обращена на юго-запад, так что вечерние чаепития проходят в лучах заходящего солнца.
Дерево в качестве основного строительного и отделочного материала определяет стилистику оформления всех помещений и связывает их с пейзажем за окном. В поддержку дереву выбраны камень, натуральные ткани, кожа, мех и металл, в разных пропорциях включенные в интерьер. Пространственная композиция в доме выстроена вокруг открытого камина и лестницы, соединяющей разные уровни жилища.
Специально спроектированный под лестницу холл-«колодец», позволил сделать ее достаточно широкой, пологой и комфортной для всех обитателей дома. Устроив под ней прачечную, удалось значительно сэкономить место. Отличительная особенность ее конструкции – отсутствие балясин; жесткость придают ей расположенные параллельно перилам перекладины. Ограждения стилизованы под секции загона для лошадей и крупного рогатого скота, что вносит в интерьер ноту иронии.
При разработке текстильного оформления за основу были также взяты натуральные природные оттенки и фактуры. Диагональная клетка портьер, «елочка» диванной обивки, клетчатые подушки и коровья шкура на полу отсылают к орнаментам и фактурам в стиле шале.












