Деревянный дом из клееного бруса в г. Пермь
Участок отличается сложной формой и непростым рельефом. Здесь имеются строения, а также большое количество сосен высотой не менее 15 метра. Проект дома выполнен в соответствии с заданием на проектирование, выданным заказчиком, и предусматривает строительство деревянного дома с большой террасой и зоной барбекю. Дом предназначен для круглогодичного проживания. Стилистика дома приближена к стилю прованс. Имеются детали, выполненные в канадском стиле: это каменные опоры и присутствующие конструкции террасы.
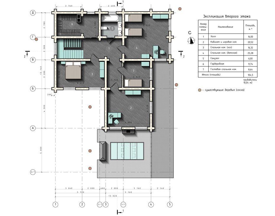
Архитектурно-планировочное решение
Планировка дома выполнена в соответствии с заданием на проектирование, исходными данными и с учетом функционального зонирования помещений. За счет ограничений в зоне посадки дома, объемно-планировочное решение придало постройке определенную форму. Дом деревянный из клееного бруса. На первом этаже находится тамбур с кладовой, холл с лестничным маршем, гардеробная для верхней одежды, гостевой туалет с душем, прачечная, котельная с отдельным выходом, кухня и гостиная-столовая с выходом на террасу. На втором этаже расположены холл, большая гардеробная, санузел с ванной, большая спальная комната для детей, гостевая спальная комната, спальня владельцев и кабинет, совмещенный с игровой зоной. К дому спроектирована большая открытая терраса с навесом с обеденной зоной барбекю.
Строительные решения и конструкции
Фундамент — ленточный с буронабивными сваями.
Наружные несущие стены — брус клееный 240 х 180 (h) мм.
Внутренние несущие стены — брус клееный 240 х 180 (h) мм.
Ненесущие стены (перегородки) — деревянные каркасные.
Перекрытия — перекрытие по деревянным балкам.
Крыша — совмещенная скатная, стропила — из деревянного бруса.
Кровля — часть из металлочерепицы, часть из поликарбоната (стекла).















