Деревянный хай-тек
Дом спроектирован двухэтажный, без подвала, с техническим помещением, гаражом. На генплане схематично проработан приусадебный участок. Уровень земли дан условно, так как разработка проекта не привязана к геодезической подоснове участка с соответствующими отметками высот. За нулевую отметку принимается уровень чистого пола первого этажа.
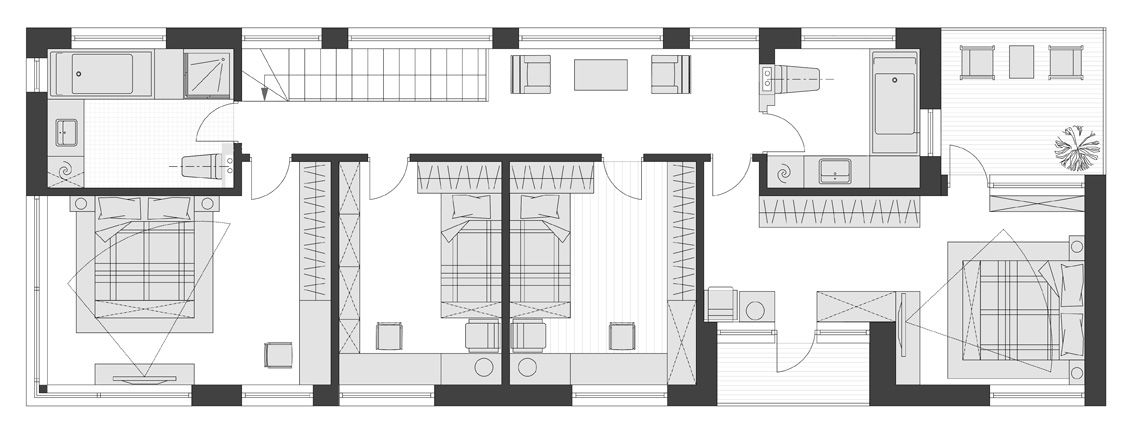
Проектом предусматривается четкая схема функционального зонирования с организацией технических помещений и санузлов с предполагаемой северной стороны участка и организацией единого жилого пространства и гостевой спальни на первом этаже и четырех спален на втором этаже.
На первом этаже расположена входная группа, состоящая из холла с лестницей, прихожей и гардероба, с доступом в техническое помещение через гараж. Холл с лестницей объединен с гостиной и кухней в единое пространство, откуда обеспечивается доступ к кабинету-библиотеке и гостевому санузлу. Проектом предусмотрены два дополнительных выхода из дома на небольшие террасы. Гостевая спальня — в непосредственной близости от гостевого санузла. На втором этаже дома расположены просторный холл с игровой, освещенные естественным дневным светом, четыре спальни, две ванные комнаты, два балкона.
Конструктивное решение
Фундамент дома ленточный, из монолитного железобетона, совмещенный со столбчатым фундаментом под террасой. Конструктивное решение дома представляет собой каркасную деревянную конструкцию с обшивкой отделочное доской из сосны с горизонтальной расшивкой. Кровля односкатная, с организацией внутреннего водостока.
Объемно-планировочные показатели:
Жилая площадь: 166,2 м2;
Общая площадь: 210,9 м2 (с террасами и балконом — 251,7 м2);
Площадь застройки: 177,916 м2.







