Множественный выбор
Выбрать номинацию

Дизайн интерьера для дома из кедрового лафета в поселке Риверсайд

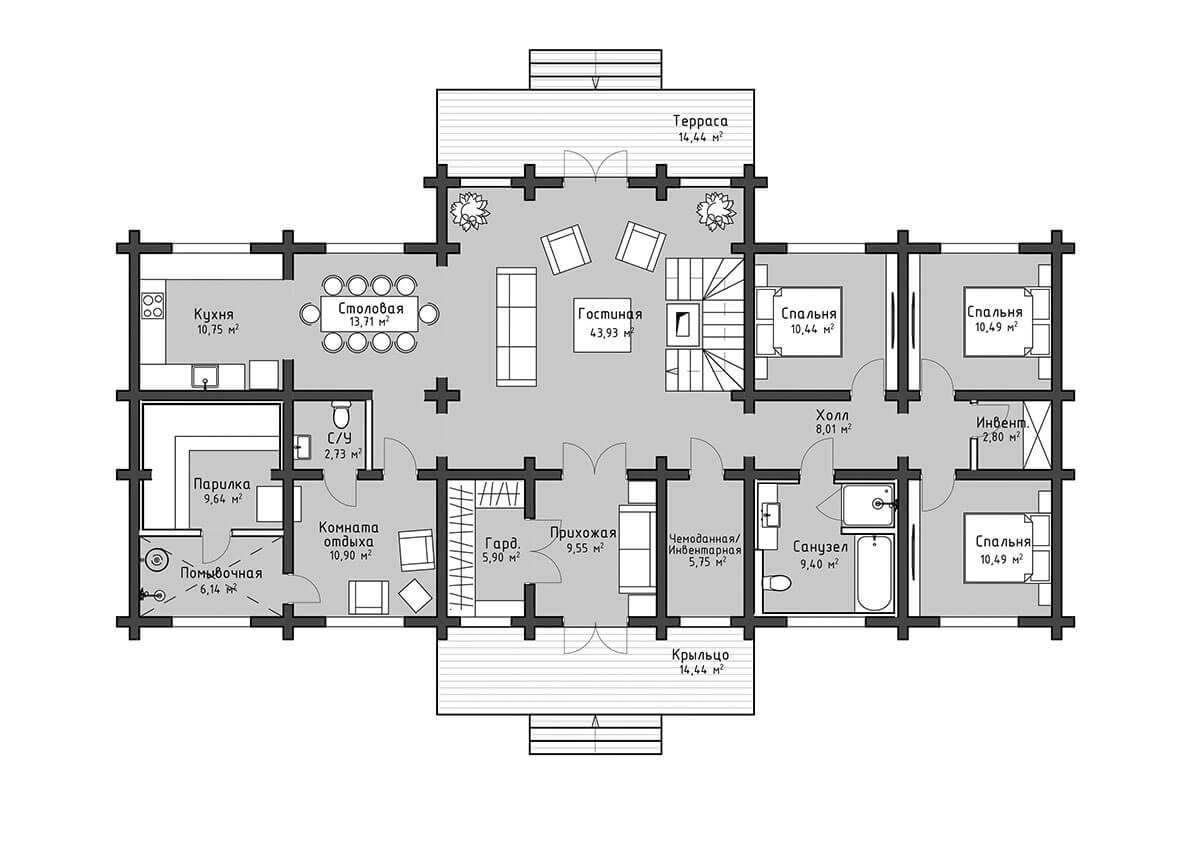
Интерьер загородного дома из лафета на Новорижском шоссе площадью 230 кв.м.

Дом и интерьер спроектированы для семейной пары с двумя взрослыми детьми, у которых уже есть свои семьи.

Этот дом — воплощение мечты заказчиков. Место «силы», где можно провести выходные вместе с большой семьей, расслабиться на свежем воздухе вдали от городской суеты.

Здесь есть всё, что нужно для отдыха. Финская сауна располагается непосредственно в доме, это было главным пожеланием заказчиков.

Просторная гостиная объединена со столовой и кухней порталом.

Тут можно проводить семейные празднования и уютные посиделки у камина или почитать книгу, уединившись в зоне под лестницей.

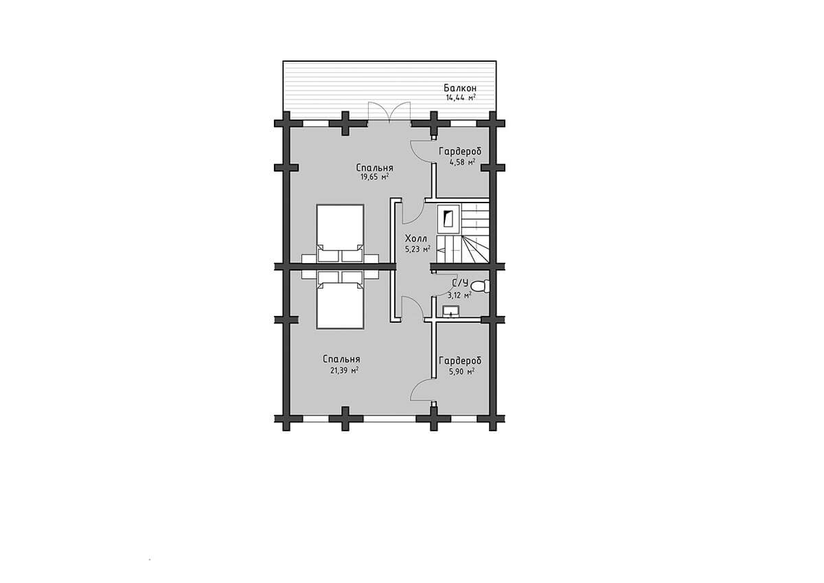
В доме предусмотрено несколько спален и зон для хранения, чтобы разместить всех детей и внуков.

Дом из кедрового лафета, каждый сантиметр в нем — ручная работа, задачей интерьера стало поддержать это.

Мебель с историей, аутентичный декор, современные детали и только натуральные материалы, никакой фальши.

Фартук на кухне выполнен из стекла, сквозь которое видно деревянную стену. Это практичное и одновременно стильное решение пришло в голову дизайнеру, как только он узнал, что материалом для дома служит кедр, ведь это дерево имеет ярков выраженную текстуру, и закрывать такую красоту было бы неверно.

На полу — керамическая плитка ручной работы, созданная по эскизам дизайнера.

Чтобы визуально расширить пространство гостиной, было принято решение украсить массивную зону лестницы, каминной зоны белоснежным деревянным декором. Две деревянные колонны, которые разделяют гостиную и коридор также решили спрятать за лепным декором. Это создает парадный эффект и разбавляет преобладание текстуры дерева.

Заказчики хотели, чтобы главным определением их интерьера стало слово «уют». Таким интерьер и получился. Он эклектичный и уютный.

Выставка конкурсных проектов
ВЫСТАВКА КРАСИВЫЕ ДОМА - 2026

ФОТОГАЛЕРЕЯ
ЭКСПОЗИЦИИ
КОНКУРСНЫХ
ПРОЕКТОВ

КАК ЭТО БЫЛО
Выставка конкурсных проектов проходит дважды в год (Весна | Осень)

Отзывы

Можно использовать **жирный**, *курсив*, [ссылку](https://example.com), списки через - или 1.
Пока отзывов нет. Будьте первым.