Дом Be:Red
Фото: Катерина Казакова
Дом расположен на участке трапециевидной формы в коттеджном поселке «Гремячевский» в черте города. Неправильная форма участка, его расположение относительно соседей, сторон света и близость автомобильной дороги — все это отразилось на форме дома, расположении окон и планировочном решении.
Несмотря на небольшой размер дома, он функционален и комфортен для проживания семьи с детьми. Также он не лишен выразительности и имеет свой характер.
Фасад дома украшен узорами из черного кирпича с 3D-эффектом на фоне классического красного. Акцентная лента начинает свой путь от входной группы и опоясывает весь дом по периметру между 1-м и 2-м этажами. Данный элемент фасада, выполненный из цементно-стружечной панели, является отличительной особенностью этого дома.
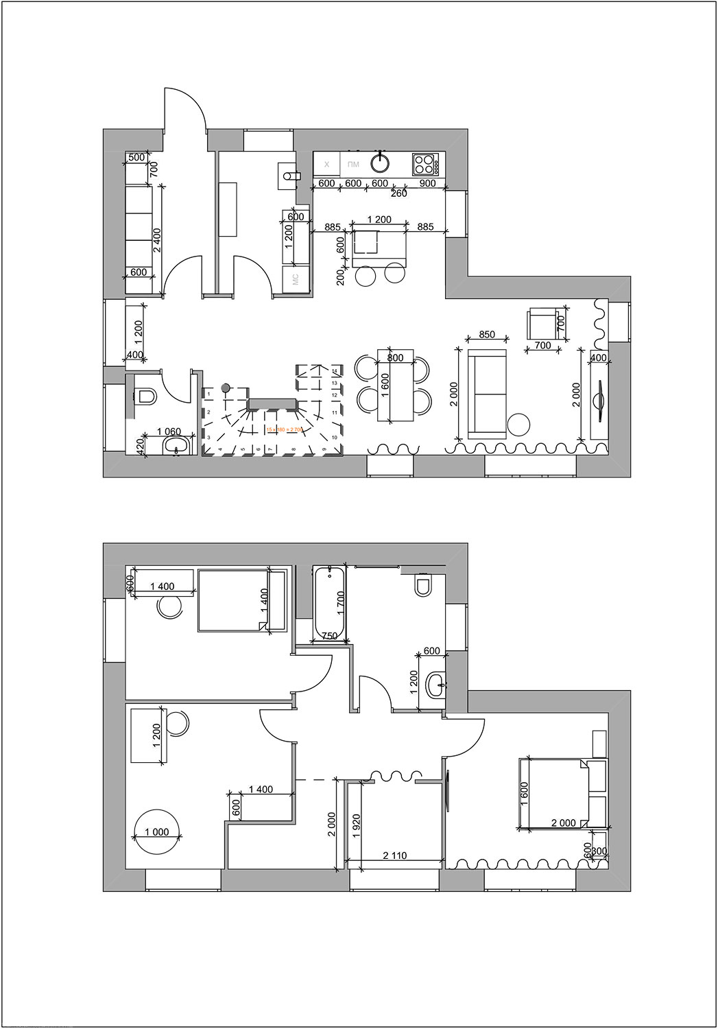
На первом этаже расположены прихожая, котельная, гостевой санузел, кухня-столовая и гостиная. На втором этаже расположены три спальные комнаты, ванная и гардеробная комната.
Оба выхода из дома (основной выход и выход из кухни) оформлены террасами, выполненными из палубной доски, покрытой восковой пропиткой, предназначенной для эксплуатации на открытом воздухе.
Озеленение участка выполнено натуральным рулонным газоном. Также высажена композиция из кустарников и можжевельников, которая придает придомовой территории неповторимый стиль. На заднем дворе сохранены молодые березы.
Забор привязан к общему стилю дома и его цветовой гамме за счет кирпичных столбов и черного профильного листа.
Общая площадь дома — 125 кв.м.








