Множественный выбор
Выбрать номинацию

Дом Бурбон

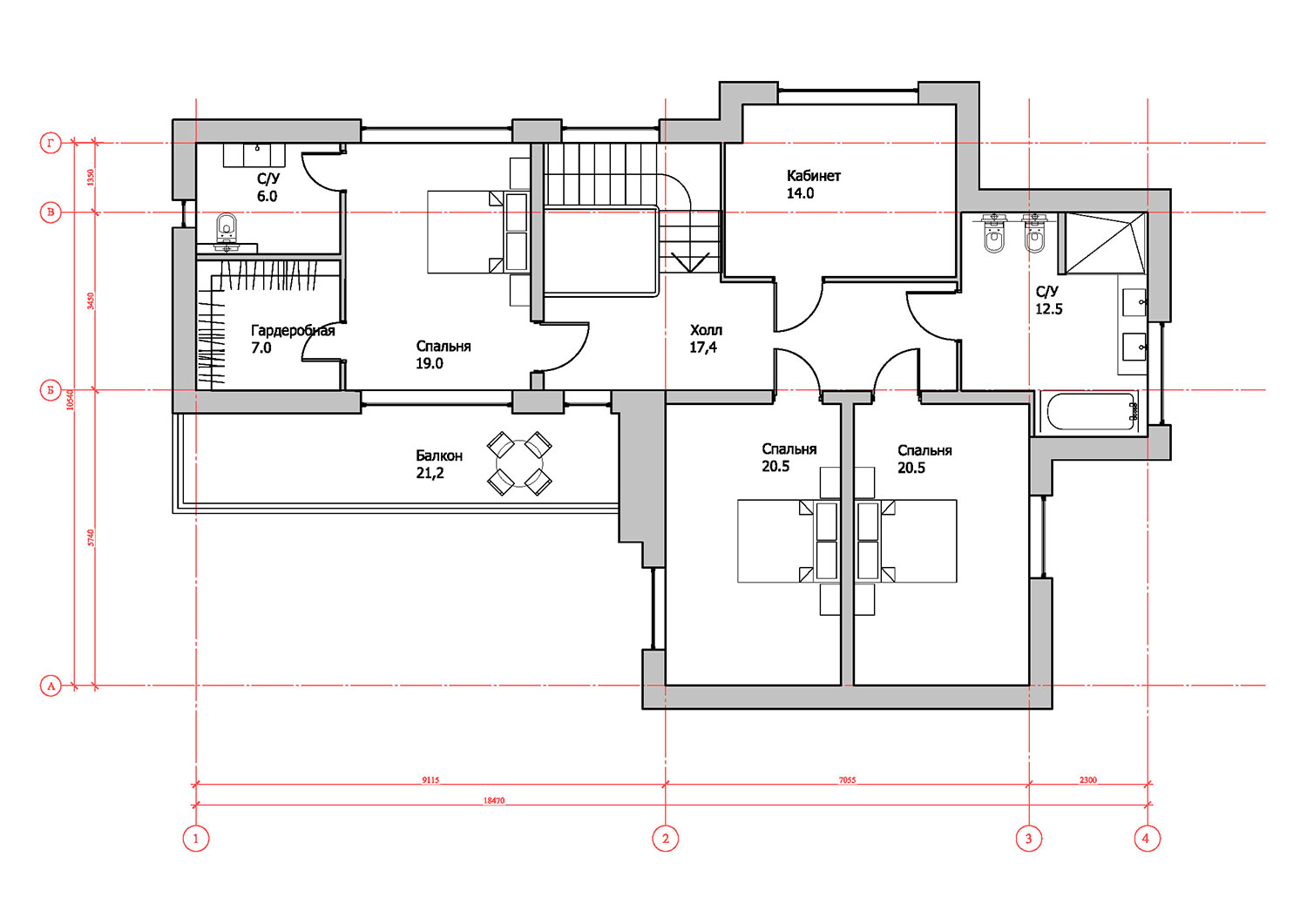
Представленный дом спроектирован для дружной семьи из пяти человек, которые планируют жить в нем круглый год. Участок, где ведется строительство, имеет одну особенность: на его территорию можно въехать с двух сторон — с северной и с южной. На южной стороне участка уже размещен домик, где сейчас проживает заказчик с семьей, а на северной будет возведен проектируемый объект.

Дом построят на самом высоком месте участка, на небольшом естественном холме, что и обыграно в планировочном и стилистическом решении. Для организации паркинга пространство первого этажа разделено на разноуровневые зоны. Парковочное место, с которого просматривается участок, располагается под выступающей частью здания, где обустроены кухня — во внутреннем пространстве и зона барбекю — на террасе. В теплое время года благодаря раздвижным перегородкам они объединяются.

Все панорамные окна первого этажа выходят во внутренний двор, а из кабинета и главной спальни открывается прекрасный вид на окрестности. На втором этаже располагаются три спальни и кабинет хозяина. Кроме того, с противоположной стороны от главного входа обустроена небольшая крытая терраса, связанная небольшой лестницей с кухонной зоной, на которую можно пройти из гостиной. На нижнем уровне предусмотрен отдельный вход в дом и технические помещения.

Конструктивная схема дома: фундамент — монолитный по ростверку; несущие стены/перегородки — ГБ блок 400 и 150 мм с наружной отделкой термоплитами и облицовкой клинкерной кирпичной плиткой разных цветов; перекрытие — монолитная плита 200 мм.

Общая площадь дома — 270,0 м²

Выставка конкурсных проектов
ВЫСТАВКА КРАСИВЫЕ ДОМА - 2026

ФОТОГАЛЕРЕЯ
ЭКСПОЗИЦИИ
КОНКУРСНЫХ
ПРОЕКТОВ

КАК ЭТО БЫЛО
Выставка конкурсных проектов проходит дважды в год (Весна | Осень)

Отзывы

Можно использовать **жирный**, *курсив*, [ссылку](https://example.com), списки через - или 1.
Пока отзывов нет. Будьте первым.