Дом для отдыха
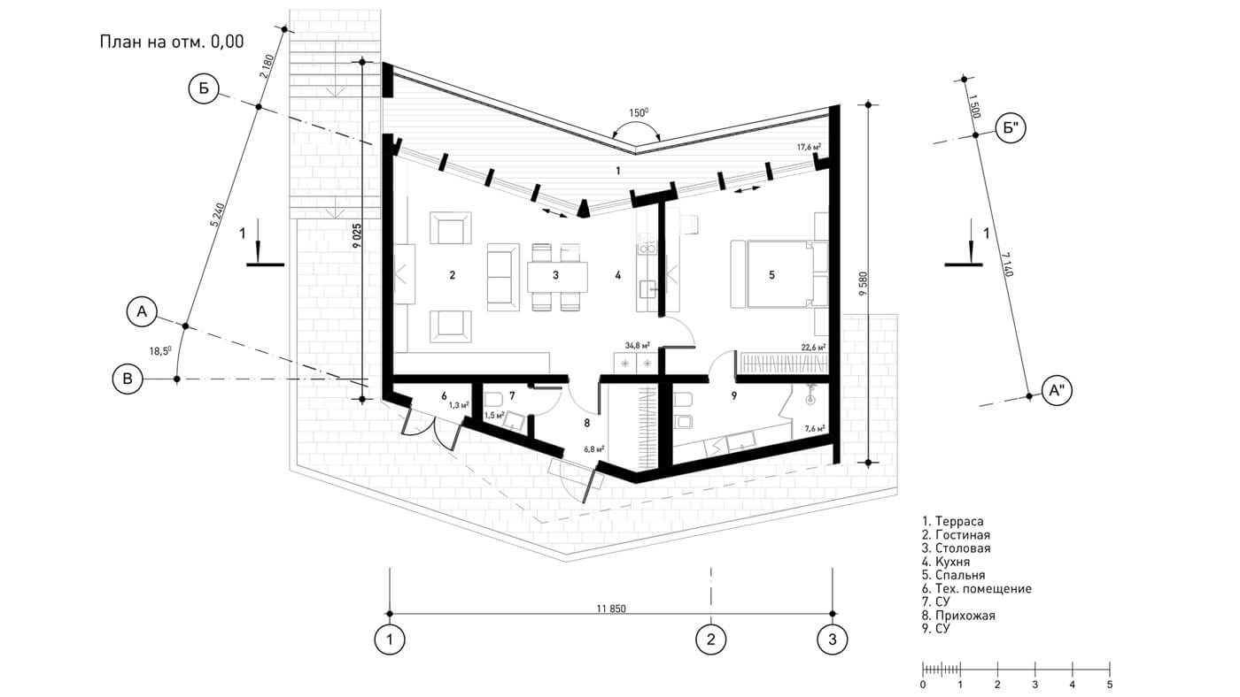
Дом для отдыха, расположен на территории пансионата и является частью общей рекреационной инфраструктуры. Дом предназначен для временного проживания и рассчитан на 1-3 человек.
Проект планируется возвести по каркасной технологии. В качестве несущего каркаса здания используется строганная доска камерной сушки. В качестве заполнения стен – минераловатные плиты. Фасад облицован деревянной рейкой типа планкен. Кровля – фальцевая, часть стен облицованы аналогично кровле.
Отзывы
Пока отзывов нет. Будьте первым.






