Дом для встречи закатов
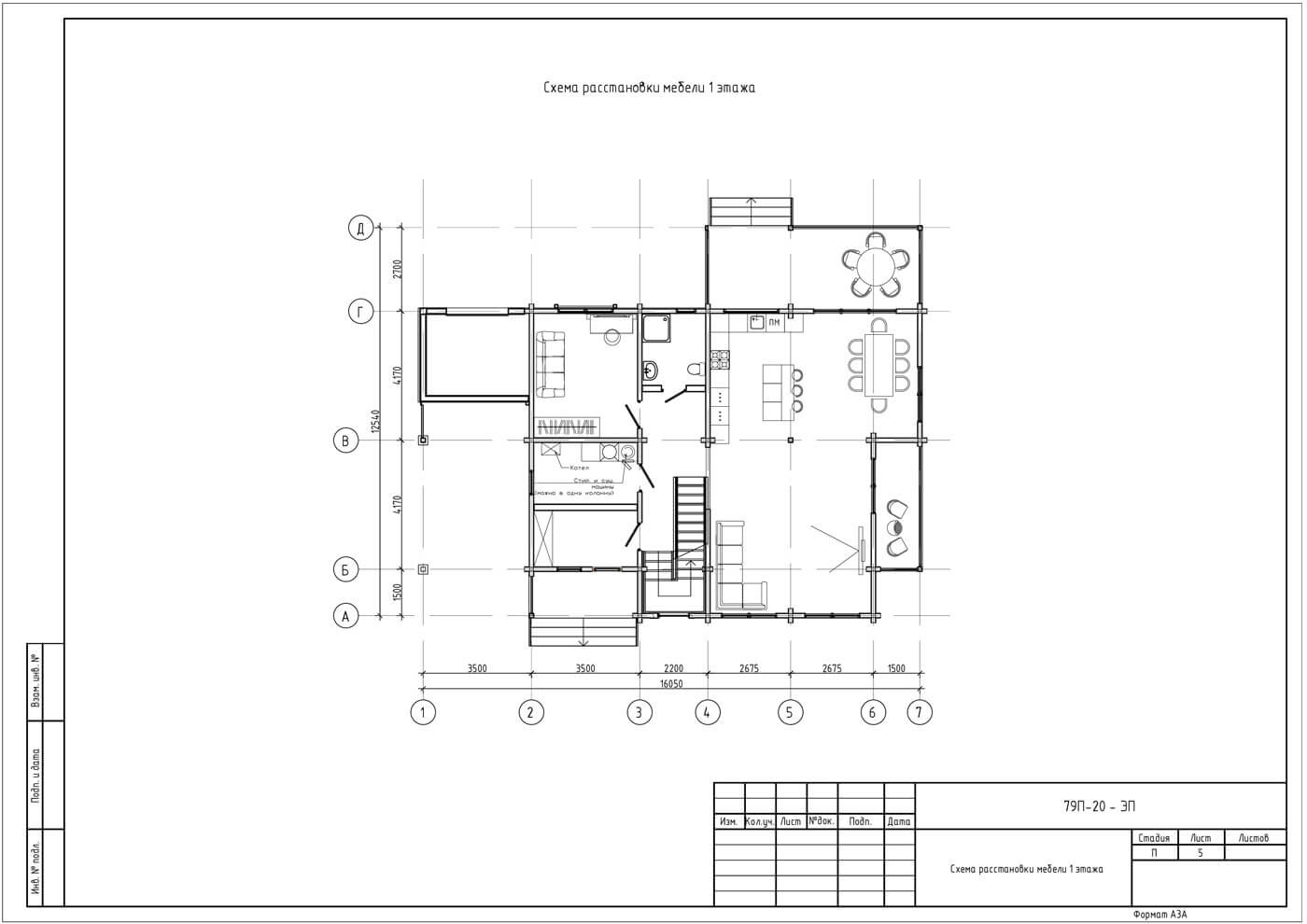
Индивидуальный жилой дом КБ-244 построен в сформированной застройке поселка, расположенного недалеко от берега Волги. Для заказчика было важно организовать выгодную планировку. Нужно было спроектировать сердце дома — просторную кухню-гостиную таким образом, чтобы она была не проходным помещением, при этом обязательным условием было сделать ее светлой и обеспечить выход из зоны столовой на террасу с видом на сад. Задача усложнялась тем, что дворовая часть участка находится на северной стороне, в связи с этим было решено спроектировать кухню-гостиную, которая бы выходила на обе стороны дома. Главный фасад с большими панорамными окнами, выходящими на юг, наполняет помещение светом и воздухом.
Дом двухэтажный, выполнен из клееного бруса. Первый этаж отдан под помещения общего пользования в то время, как все спальные комнаты вынесены на второй этаж в приватную зону. При входе в дом нас встречает просторная прихожая с зоной хранения верхней одежды. Из нее мы попадаем в холл с воздушной лестницей, ведущей на второй этаж. Здесь же расположены кухня-гостиная с вторым светом, гостевой сан узел, котельная и кабинет.
Второй этаж дома также разделен на зону детских комнат с своим сан узлом и блок мастер спальни, разнесённый с детскими в разные стороны дома. Отдельным запросом заказчика было наличие выхода на балкон из мастер спальни.
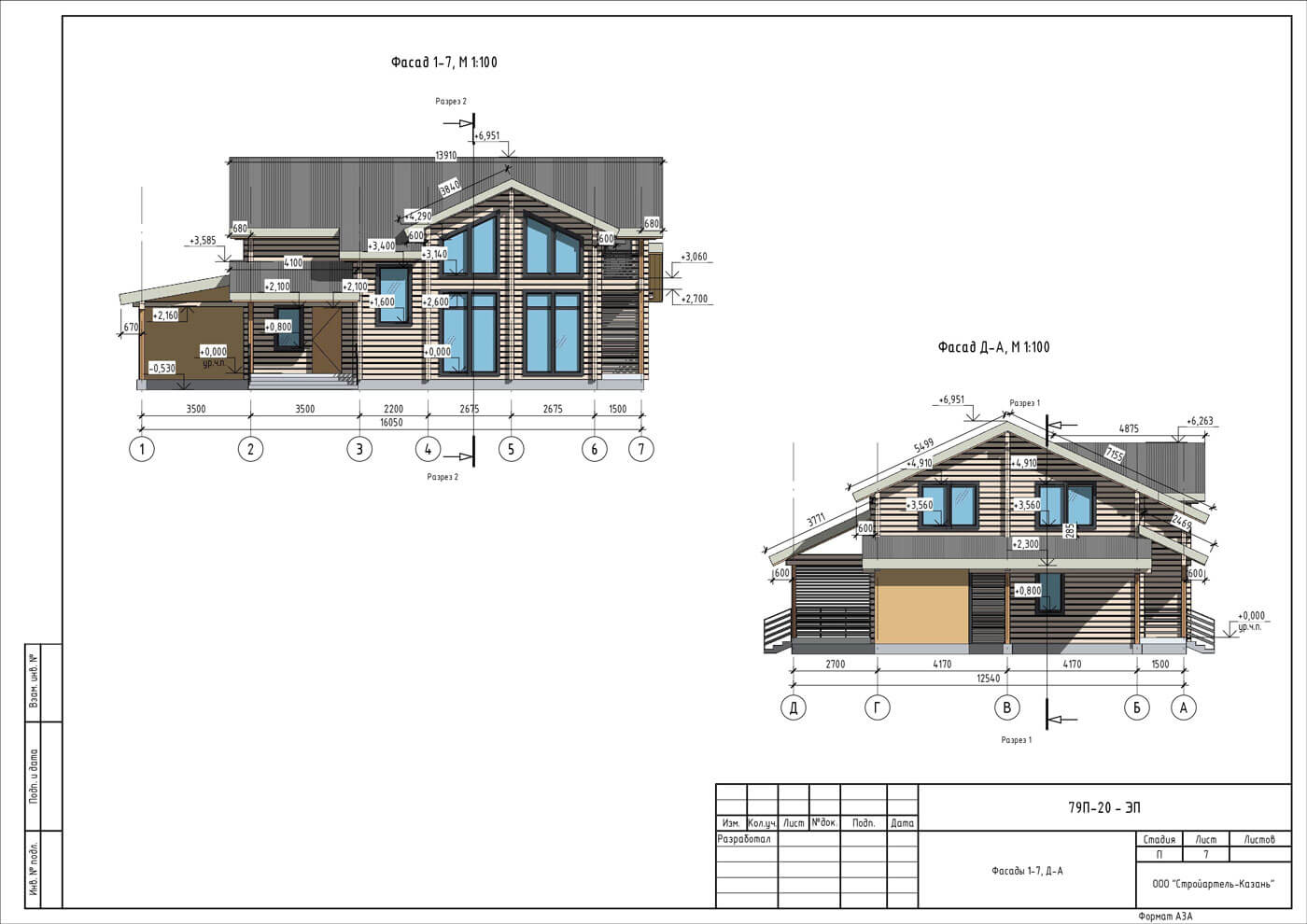
Дом выполнен в традициях финской архитектуры с разноуровневыми скатами кровли. Изюминку проекту добавляет его темно-оранжевый оттенок, который хорошо сочетается с антрацитово-серыми окнами. Особенно красиво фасад играет светом на закате, подчеркивая и без того сочный цвет бруса.












