Множественный выбор
Выбрать номинацию

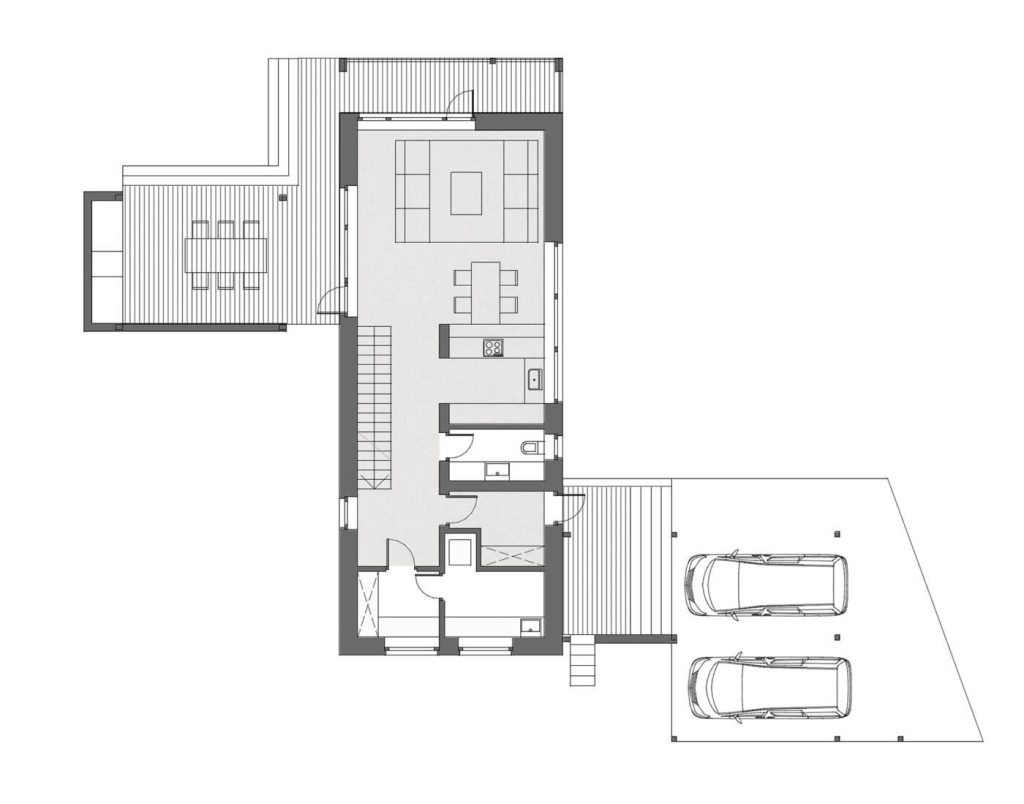
Дом Идальго

Одинокий дом на склоне холма. Вид на озеро Нерское и лесные дали.

Потемневшие доспехи покрывают старое тело глиняного фасада-гладкий металл собранный в фальцевые замки и неровный кирпич 19 века. Небольшой — в 160 кв.м на неровном участке, узкий, с витражами, уходящими в горизонт. Окна свободно расползаются по стенам, балки собраны в прозрачные навесы. Для человека, который ищет прибежище после скитаний. Две спальни, кабинет, гостиная и терраса с печью — минимальный набор для комфорта.

Выставка конкурсных проектов
ВЫСТАВКА КРАСИВЫЕ ДОМА - 2026

ФОТОГАЛЕРЕЯ
ЭКСПОЗИЦИИ
КОНКУРСНЫХ
ПРОЕКТОВ

КАК ЭТО БЫЛО
Выставка конкурсных проектов проходит дважды в год (Весна | Осень)

Отзывы

Можно использовать **жирный**, *курсив*, [ссылку](https://example.com), списки через - или 1.
Пока отзывов нет. Будьте первым.