Дом из клееного бруса. Медное озеро – 2
Этот дом, построенный на Карельском перешейке в окружении соснового леса, создавался как усадьба, поэтому и архитектура его, и внешний образ были выбраны не случайно.
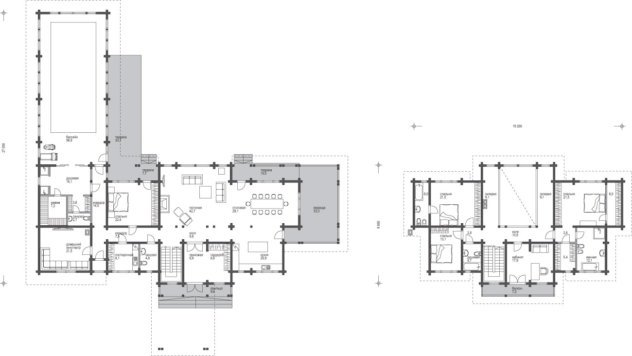
Планировочная схема максимально функциональна и современна. Ядро постройки составляет двусветный объем здания, увенчанный двускатной крышей. Здесь расположено центральное помещение дома — объединенное пространство гостиной, кухни-столовой и холла. Перпендикулярно к основному зданию развернуто помещение бассейна, к которому примыкают остальные помещения SPA-зоны с хамамом, финской сауной и душевыми. Бассейн имеет максимальное остекление, что позволяет визуально расширить его пространство, наполнить дневным светом. Почти из всех помещений первого этажа предусмотрены выходы на террасы, в том числе и теплую террасу под кровлей, что позволяют наслаждаться природой в любую погоду. Второй этаж — приватная зона со спальнями и ванными комнатами.
За большими окнами гостиной, начинающимися почти от пола, открывается панорамный вид на участок, ярко выраженный рельеф которого позволил организовать интересный ландшафт с перепадами высот и разными уровнями, словно имеющими природное происхождение.










