Множественный выбор
Выбрать номинацию

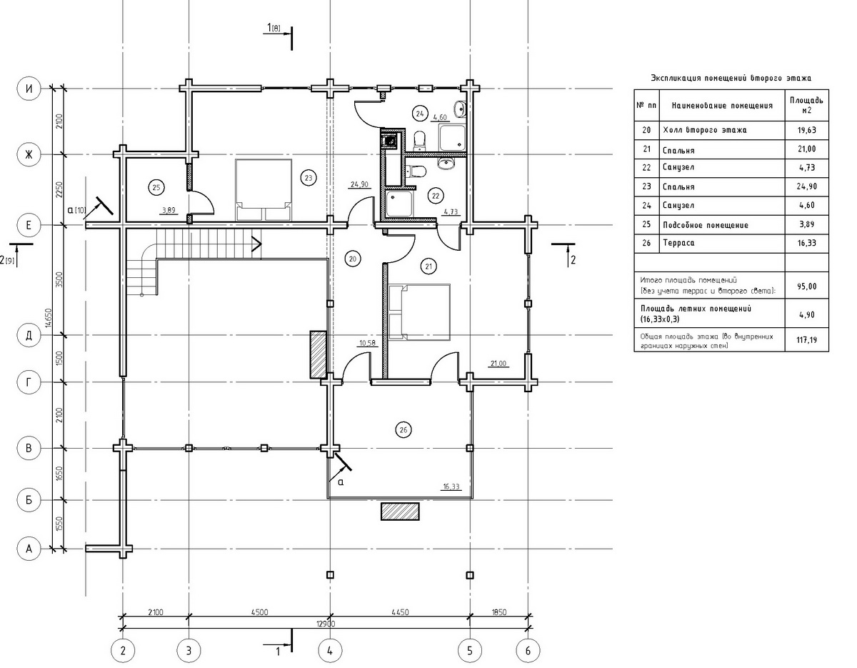
Дом из клееного бруса в Московской области*

Дом выполнен из клееного бруса и призван раскрыться не с главного фасада, выходящего на дорогу, а с внутреннего двора, куда выходят обширные окна из двусветной гостиной.

Связующим элементом всей планировки первого этажа является терраса с большим грилем, где имеются затемненные места, а также открытые солнцу. С террасы можно попасть на кухню, в гостиную и столовую.

Планировочные решения идеально подходят для молодой семьи, решившей приобрести дом в связи с рождением ребенка. Тщательно продуманная планировка с большим количеством перетекающих друг в друга пространств на первом этаже и уютными спальнями на втором отвечает всем возможным потребностям.

Выставка конкурсных проектов
ВЫСТАВКА КРАСИВЫЕ ДОМА - 2026

ФОТОГАЛЕРЕЯ
ЭКСПОЗИЦИИ
КОНКУРСНЫХ
ПРОЕКТОВ

КАК ЭТО БЫЛО
Выставка конкурсных проектов проходит дважды в год (Весна | Осень)

Отзывы

Можно использовать **жирный**, *курсив*, [ссылку](https://example.com), списки через - или 1.
Пока отзывов нет. Будьте первым.