Дом из клееных деревянных панелей CLT РОМАН
В сентября 2008 года в Подмосковье был построен первый в России дом из клееных деревянных панелей. За три дня дом был возведен под крышу, по мнению экспертов, такие сроки монтажа превзошли все мыслимые ожидания.
Строительство дома по проекту Roman было выполнено из клееных деревянных панелей, произведенных компанией KLH Massivholz GmbH (Австрия), одной из пионеров в области производства и строительство домов из деревянных панелей.
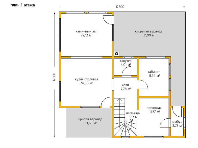
Деревянный дом «Роман» предназначен для круглогодичного проживания семьи. На первом этаже расположились кухня-столовая, гостинная с камином, кабинет, санузел. Второй этаж отведен для отдыха и сна и состоит из 4 спален и санузла. Общая площадь дома — 215 кв.м.
Tехнология Cross Laminated Timber заключается в изготовлении из древесины 4–5 сорта массивных панелей толщиной до 300 мм, из которых вырезаны детали дома. Слои досок в панели располагаются перпендикулярно друг другу. Высота панелей составляет 3 м, длина — до 12 м. Массивная панель из дерева имеет огромные мощностные показатели. Из данной панели изготовлены стены, перекрытия и крыши.
Для производства панели применяются клеевые системы Akzo Nobel, которые являются бысрейшими по времени прессования и имеют все европейские разрешения на данное применение.
Монтаж здания осуществляется на строительной площадке. Скорость монтажа дома площадью 250 кв.м составляет 4–5 дней, что является хорошим скоростным показателем в решении задач строительства жилья.
Снаружи стены дома первого этажа отделаны вентилируемым фасадом, в стены второго этажа обшиты деревом и окрашены в стиле фахверк. Кровля – натуральная цементно-песчаная черепица.
В течение 10 лет велись наблюдения за домов. По истечении испытаний в доме из клееных панелей была выполнена отделка согласно дизайн-проекту. За 10 лет стены дома не деформировались, не наблюдалась усадка здания, энергоэффективные показатели превосходят все ожидания.
Технология CLT имеет огромные перспективы в России. Она позволяет возводить дома в котороткие сроки. Позволяет использовать сырье 4-5 сорта и способствует развитию лесопромышленного комплекса. Стоимость строительтсва домов из клееных деревянных панелей значительно ниже, чем из цельной или клееной древесины. Жилье имеет экологичный сертификат и низкие затраты на отопление.












