Дом на дереве
Главная идея проекта — строительство дома на существующем рельефе с минимальным вмешательством, а также сохранение имеющихся деревьев. На ее основе была разработана концепция многоуровневого дома. Расположение здания учитывает ориентацию по сторонам света, а также живописные виды, открывающиеся из окон.
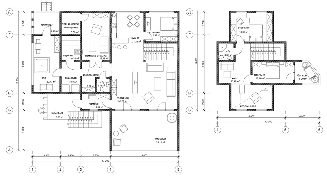
Дом предназначен для круглогодичного проживания. На первом этаже размещены просторная гостиная со вторым светом, кухня, в которую можно попасть через барную зону, и спальня. Из гостиной предусмотрен выход в зону спа, включающую в себя комнату отдыха с камином, раздевалку, душевую, парную и зал для проведения спа-процедур и массажа. На втором этаже имеются две спальни, с балкона открывается вид на озеро.
Конструктивное решение: фундамент — ленточный железобетонный. Перекрытия первого этажа — по деревянным балкам с эффективным утеплителем 200 мм. Стены каркасные с деревянной обшивкой. Устройство крыши — деревянная стропильная система, покрытие — металлопрофиль.








