Дом на Истринском водохранилище
Дом 750 кв м спроектирован с плоской кровлей на участке вблизи лесного массива.
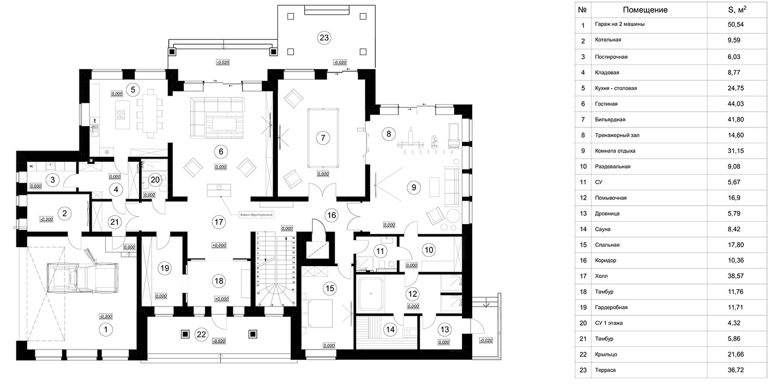
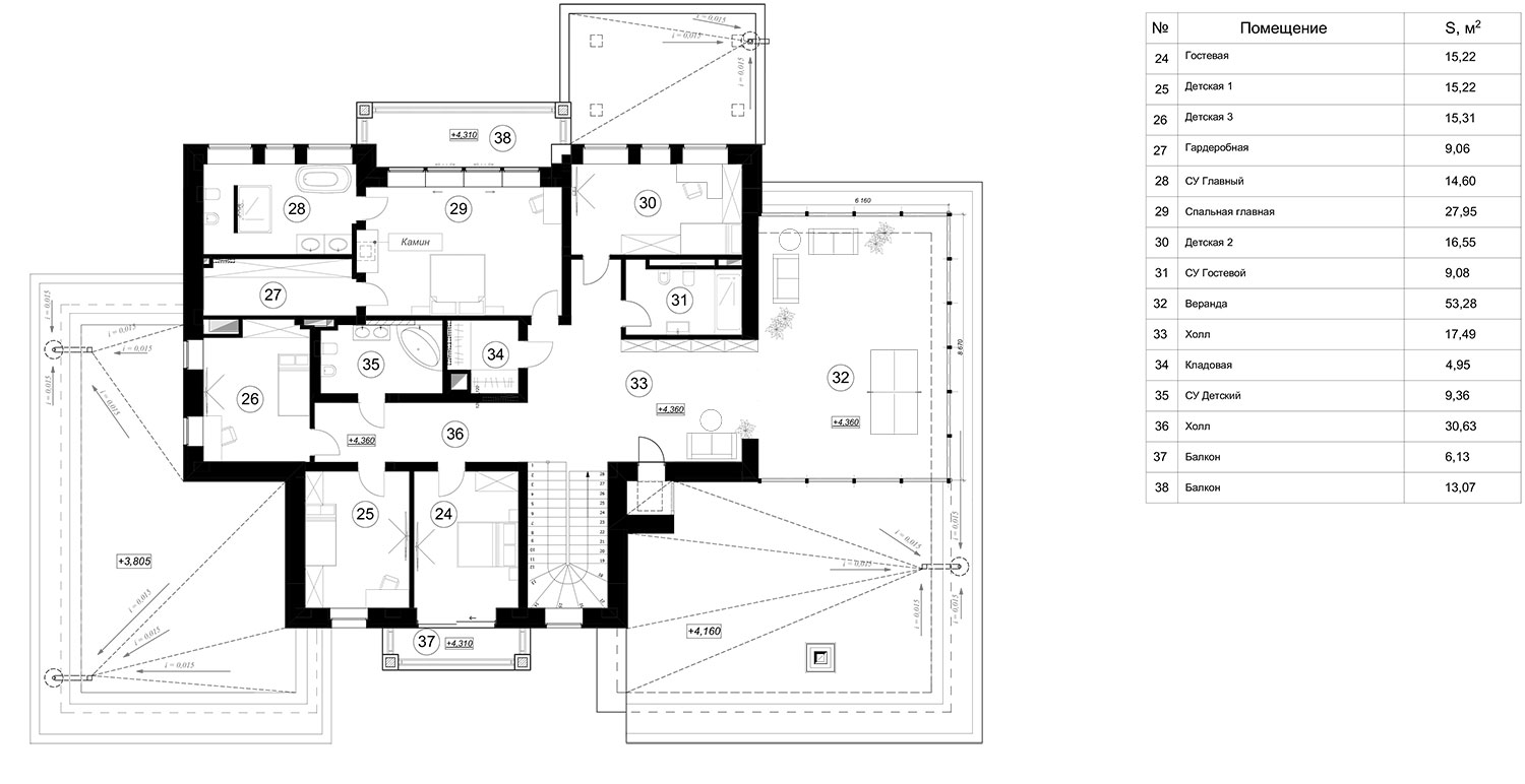
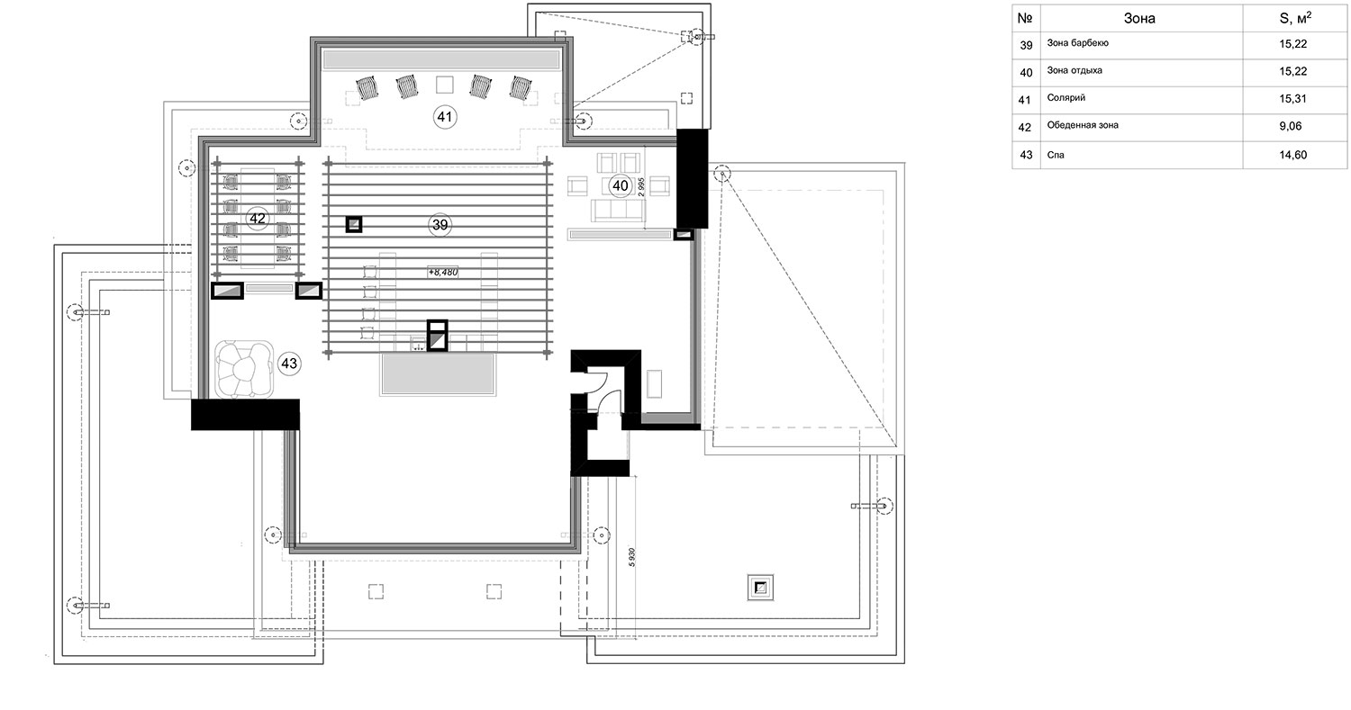
Современная архитектура дома подчеркнута качественными материалами. Фасады дома выполнены из клинкерного кирпича и дерева. Из больших панорамных окон открывается вид на природное окружение. В доме, помимо пяти жилых комнат предусмотрен гараж на 2 машины и спортзал. Лифт с первого этажа поднимается до уровня кровли, где через тамбур предусмотрен выход на улицу. На кровле размещены лежаки и барбекю для проведения расслабленного отдыха в кругу друзей.
Отзывы
Пока отзывов нет. Будьте первым.













