Множественный выбор
Выбрать номинацию

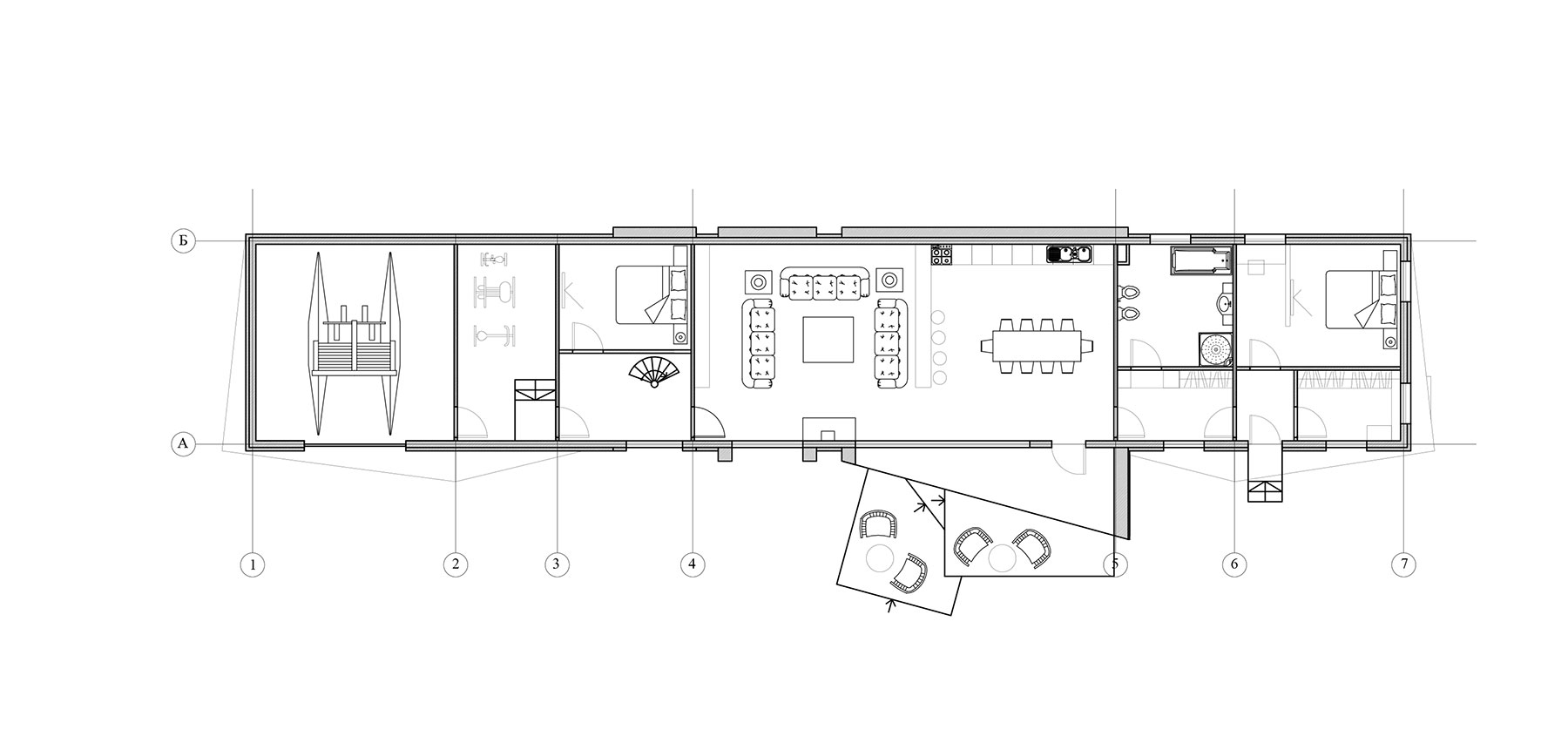
Дом на озере

Частный двухэтажный дом площадью 195 м² с открытой террасой отличается сложной геометрической формой. Для облицовки фасадов и крыши предполагается использование планкена с фальцевой кровлей.
Расположение поблизости искусственного водоема определило концепцию проекта: за основу был взят бумажный кораблик.

Дом можно разделить на три основные зоны: эллинг со спортзалом для хранения лодки или катамарана, а также гостевая спальня, общественная зона с просторной кухней и гостиной и приватные апартаменты — две спальни, одна из которых находится на втором этаже, и две гардеробные.

Выставка конкурсных проектов
ВЫСТАВКА КРАСИВЫЕ ДОМА - 2026

ФОТОГАЛЕРЕЯ
ЭКСПОЗИЦИИ
КОНКУРСНЫХ
ПРОЕКТОВ

КАК ЭТО БЫЛО
Выставка конкурсных проектов проходит дважды в год (Весна | Осень)

Отзывы

Можно использовать **жирный**, *курсив*, [ссылку](https://example.com), списки через - или 1.
Пока отзывов нет. Будьте первым.