Множественный выбор
Выбрать номинацию

Дом на склоне

Дом расположен на живописном склоне деревни Лиголамби во Всеволожском районе Ленинградской области.

Заказчикам изначально импонировала не теряющая актуальность экоархитектура, для которой характерны натуральные материалы и связь с природой. Именно поэтому автор проекта ориентировалась на выразительный и лаконичный стиль современного альпийского шале.

Дом, как видно из названия, спроектирован на участке с активным рельефом, и представляет собой одноэтажное строение с цокольным этажом, вписанным в склон участка. Основные общие помещения, благодаря обширному остеклению, визуально ориентированы на видовое пространство участка перед домом. С террас первого и цокольного этажей открываются красивые виды на деревню и реку, расположенные несколько ниже. Благодаря такому планировочному решению получилось роскошное высокое пространство в гостиной-столовой с выходом на террасу, соединенную с уровнем входа первого этажа. Дополнительную освещенность общему пространству первого этажа дают мансардные окна.

Стены дома выполнены из профилированного клееного бруса сечением 200 на 240 мм, тонированного под дуб. Цоколь выполнен из монолитного железобетона, утеплен и облицован натуральным сланцевым камнем графитовых тонов. Также в цоколе выполнены декоративные вставки из деревянного планкена. Кровля над домом лаконичная, с малым уклоном и битумным покрытием, переходящая в навес для машин из безопасного стекла по деревянным клееным балкам. Вентиляционные и дымовые каналы выполнены в системе schiedel.

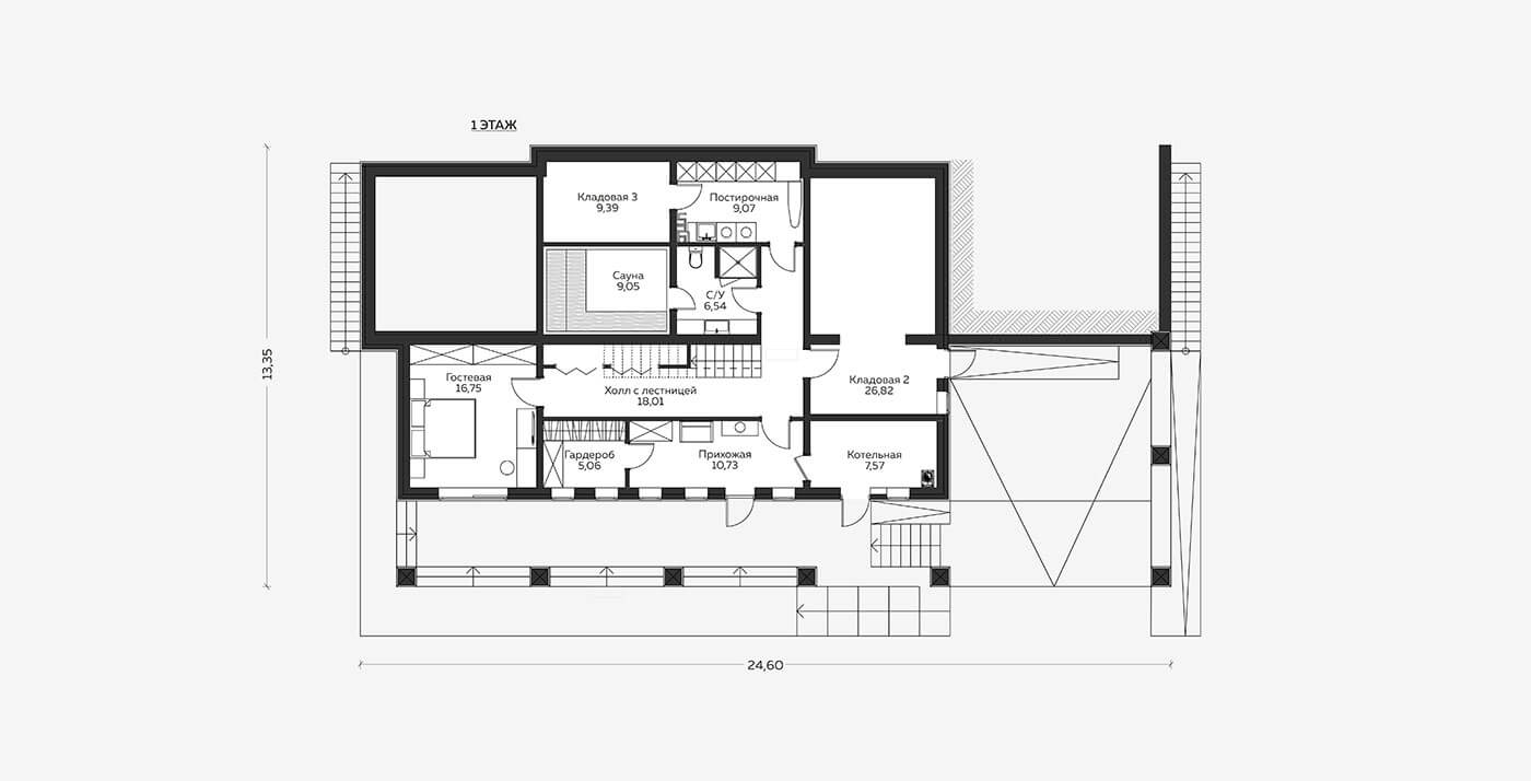
Функционально дом разделен на жилой и хозяйственно-гостевой уровни. На первом этаже расположены гостиная-кухня-столовая с кладовой, две детские, санузел, хозяйская спальня с санузлом и гардеробом, входная группа с прихожей, есть выход на большую террасу.

Цокольный этаж включает навес на две машины, входную группу с крыльцом, прихожей и гардеробом, холл с лестницей, котельную, кладовые, прачечную, гостевую спальню, сауну с санузлом и душевой. Предусмотрен выход на крытую террасу.

Общая площадь дома — 308 м².

Выставка конкурсных проектов
ВЫСТАВКА КРАСИВЫЕ ДОМА - 2026

ФОТОГАЛЕРЕЯ
ЭКСПОЗИЦИИ
КОНКУРСНЫХ
ПРОЕКТОВ

КАК ЭТО БЫЛО
Выставка конкурсных проектов проходит дважды в год (Весна | Осень)

Отзывы

Можно использовать **жирный**, *курсив*, [ссылку](https://example.com), списки через - или 1.
Пока отзывов нет. Будьте первым.