Дом на склоне
«Дом на склоне» спроектирован в стиле барнхаус совместно с прилегающим ландшафтом. Здание площадью 208 м² расположено на участке с большим уклоном. В пространственной ориентации объекта использованы все преимущества окружающего ландшафта. Из гостиной с панорамными окнами открывается захватывающий вид на поросшую лесом холмистую местность. Отсюда можно спуститься на открытую террасу по винтовой лестнице.
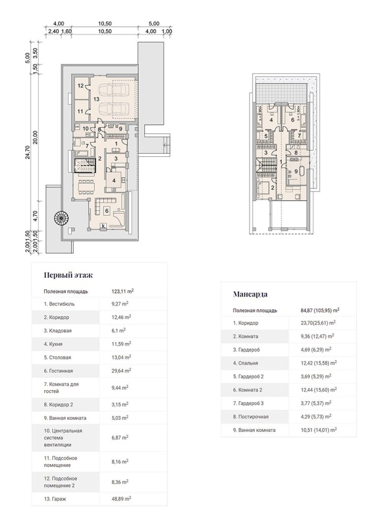
На первом уровне дома устроены общие помещения. Просторная гостиная объединена со столовой и кухней. Помещение для готовки зонировано и соединено напрямую с кладовой. Здесь же находится комната для гостей. В противоположном крыле спроектирован гараж и подсобные помещения.
С правой стороны здания в торцевой части первый уровень несколько смещён относительно классической для барнхауса двухскатной крыши, что делает проект необычным и уникальным. Для усиления эффекта асимметрии стена отделана светлой силиконовой штукатуркой, контрастирующей с основным приемом декорирования, для которого выбраны фасадные плиты из кварцевого сплава Laminam.
На мансардном этаже устроены три спальни с собственными гардеробными, ванной комнатой и постирочной. Проект поддержан энергосберегающими технологиями: на крышу вынесены солнечные панели, а проект отопления выполнен на базе теплового насоса.
В непосредственной близости к дому находятся бассейн с джакузи, отсюда можно спуститься к уютной альтанке и погреться у очага. С другой стороны сада расположена большая детская площадка и подвесные гамаки.
Проектировщик максимально эффективно использовал все пространство на сложном участке.
Для уютной семейной резиденции выбран лаконичный амбарный стиль, наполненный светом и воздухом. Окружающая природа составляет важную часть дома, поддерживая главную идею разработки: жизнь в гармонии с собой и миром.


























