Множественный выбор
Выбрать номинацию

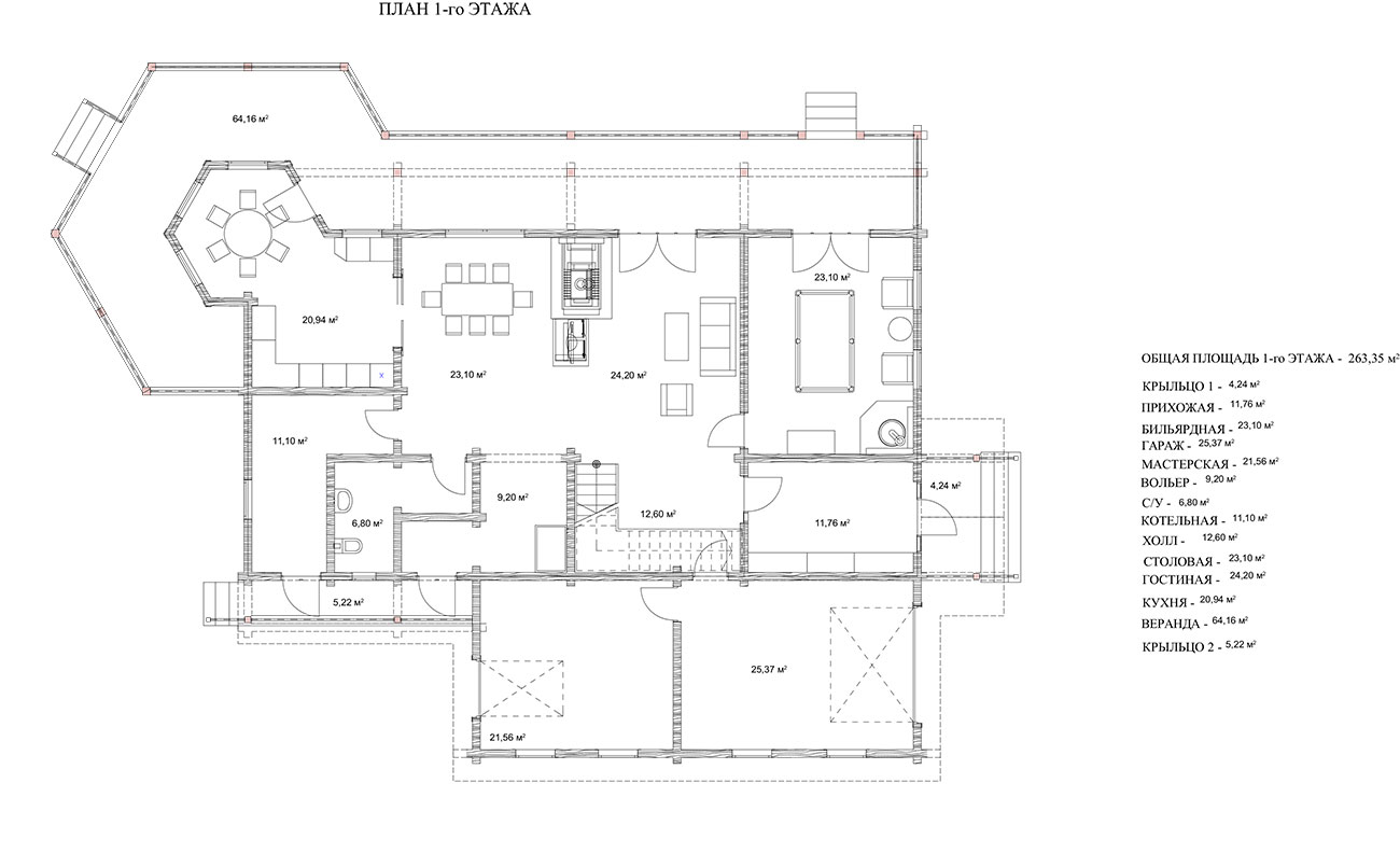
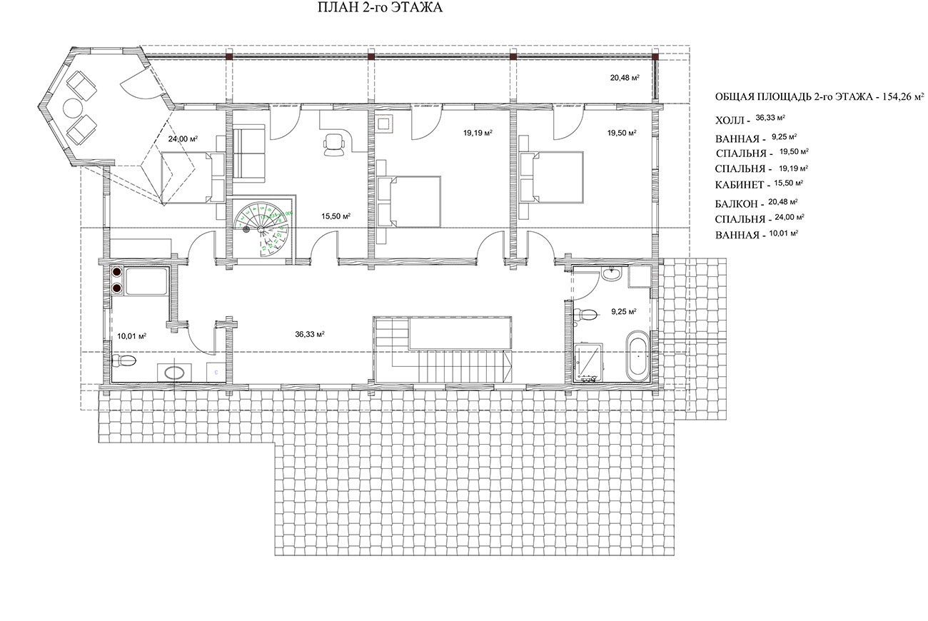
Дом на Волге

Главная особенность здания — шестигранный эркер с остроконечной черепичной крышей на главном фасаде, большое количество окон, балконы и террасы с резными деревянными ограждениями усложняют пластику архитектурного объема. Исходный простой объем с двумя этажами дополнен входной группой с крыльцом с противоположного фасада.

На первом этаже расположена общественная зона: объединенная гостиная-столовая, кухня с малой столовой в эркере, бильярдная. Второй этаж занимают кабинет, три спальни и ванные комнаты. Также в состав дома входит гараж и котельная.

Строительная компания выполнила полный цикл работ по данному объекту, начиная от строительства фундамента и заканчивая всеми отделочными работами, включая все инженерные системы.

Выставка конкурсных проектов
ВЫСТАВКА КРАСИВЫЕ ДОМА - 2026

ФОТОГАЛЕРЕЯ
ЭКСПОЗИЦИИ
КОНКУРСНЫХ
ПРОЕКТОВ

КАК ЭТО БЫЛО
Выставка конкурсных проектов проходит дважды в год (Весна | Осень)

Отзывы

Можно использовать **жирный**, *курсив*, [ссылку](https://example.com), списки через - или 1.
Пока отзывов нет. Будьте первым.