Дом NIKOLINA GORA
Комфортный и просторный загородный дом в стародачном месте расположен на относительно узком и рельефном участке в окружении соснового леса.
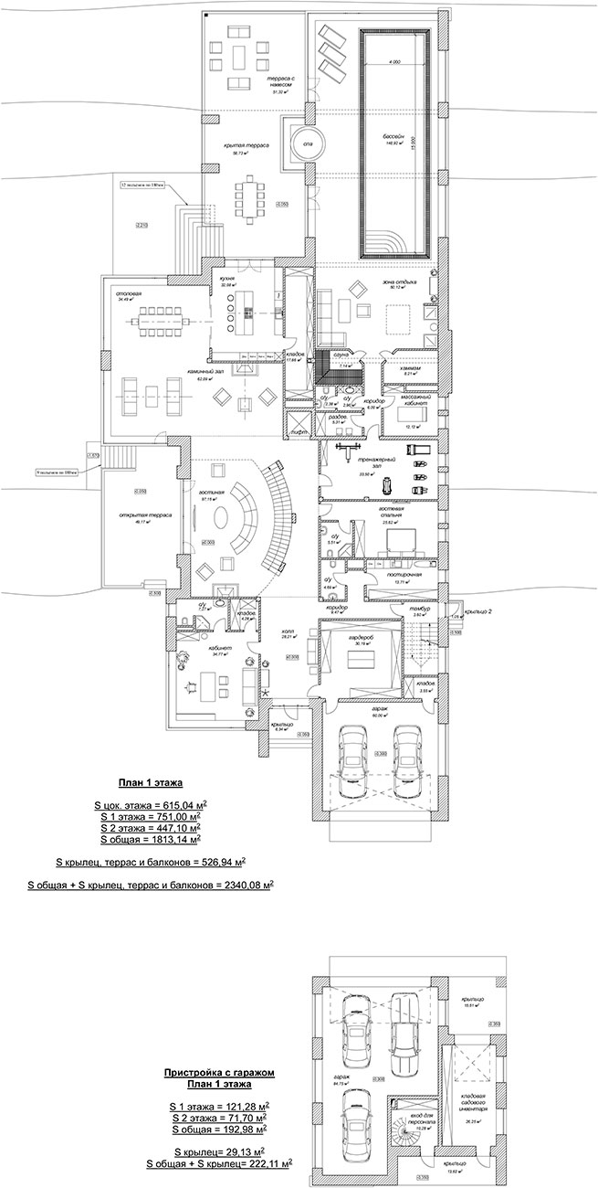
Вытянутая форма дома обусловлена формой участка и ориентацией по сторонам света. Ближе ко въезду на участок размещен гараж с хозблоком и помещениями персонала. Гараж общим навесом соединен с домом.
При входе в дом размещена просторная гардеробная и кабинет для деловых встреч. Двухсветная гостиная имеет выход на открытую террасу. За каминным залом расположена столовая и кухня с выходом на крытую террасу, нависающую над оврагом с панорамным видом на окружающий ландшафт. Также в уровне первого этажа размещены помещения спортзала и зоны спа с бассейном, сауной и хаммамом.
На втором этаже расположен хозяйский блок из двух спален, ванной и гардеробной, а также детские и гостевые спальни с выходами на эксплуатируемые террасы.
Проектом предусмотрено применение как современных, так и классических экологически чистых материалов. В отделке фасадов применено сочетание клинкерного кирпича, натурального камня и фасадных панелей.
Общая площадь дома с помещениями гаража составляет 2005 кв.м.








