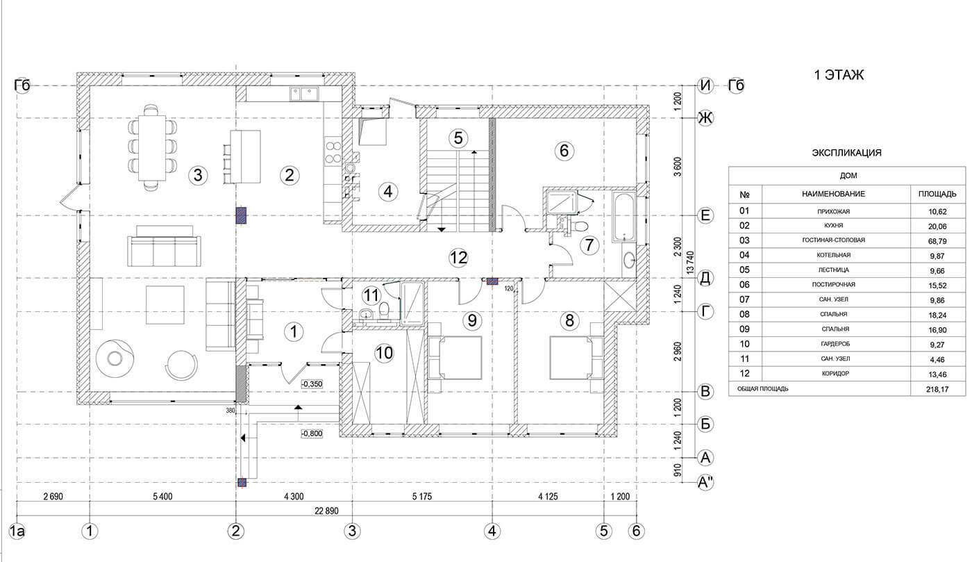
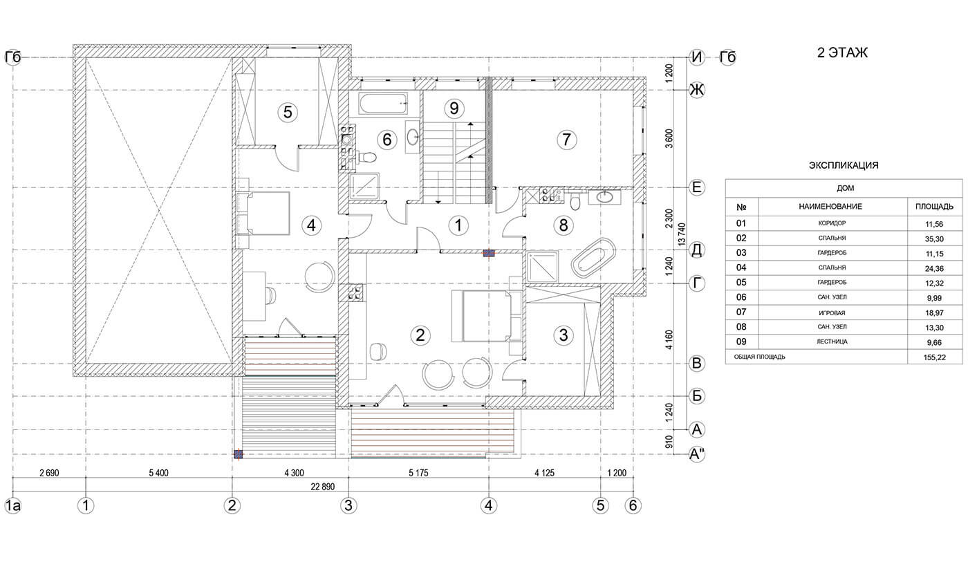
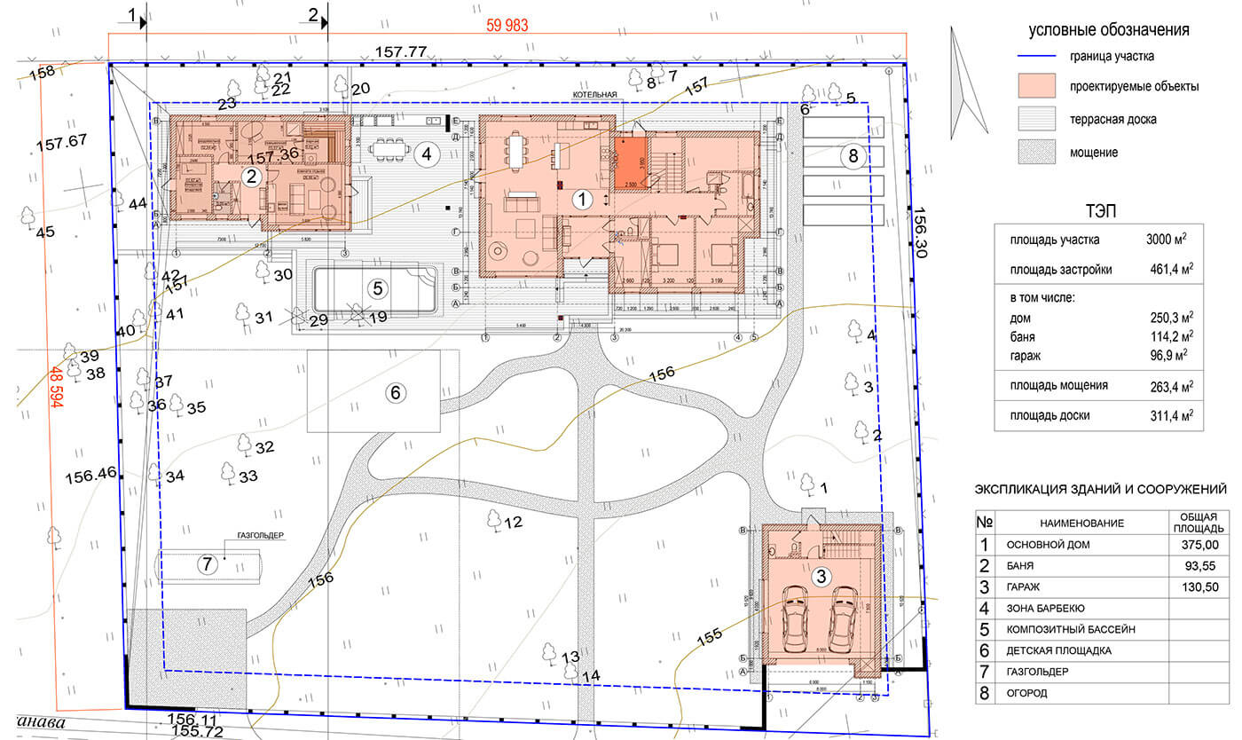
Дом ОЖИГОВО
Объект проектирования расположен в Московской области в Рузском районе.
Участок с перепадом рельефа и уклоном в сторону улицы располагается во второй линии от берега реки. Дом и баня расположены в глубине участка в самой высокой точке, что позволяет улучшить обзор из дома и открытых террас на реку и лес.
Дом объединен с баней крышей накрывающей часть террасы с барбекю. В одном уровне с зоной барбекю расположен бассейн.
Конструкции здания выполнены из кладки керамическими блоками «Поротерм» с последующим утеплением.
В отделке фасадов используется технология «мокрый фасад» и обшивка колотым шинделем. Кровля фальцевая цвета «антрацит».
Отзывы
Пока отзывов нет. Будьте первым.









