Дом по проекту Воздвиженский лес
Фото: Виталий Балашов
Дом спроектирован и построен в стиле американского деревенского домика, или «лесной берлоги». Основной идеей было создание проекта каркасного дома с максимально деревянной комбинированной отделкой, сложной многоуровневой кровлей, вторым светом в зоне гостиной, большой террасой и гаражом на две машины.
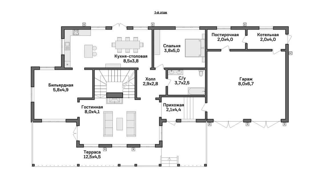
Общая площадь дома составляет 522 кв.м и вмещает в себя 5 спален, 3 санузла, просторную гостиную со вторым светом, кухню-столовую, бильярдную комнату и гараж на две машины с прачечной и котельной. Из кухни-гостиной организован выход на задний двор, полностью занятый высокими соснами. А с балкона холла второго этажа открывается шикарный вид на гостиную с высокими двухуровневыми окнами и сводчатым потолком.
Во внешней отделке дома применены редкие для нашей страны материалы, полностью отвечающие запросу на максимально деревянный и уникальный дом: натуральная кедровая дранка, брашированная (состаренная) имитация бруса, лиственница, а также термопанели с плиткой из искусственного камня, имитирующего разноформатный тёс.
Архитектура дома и его цветовое решение гармонично сочетаются с окружающими его многометровыми соснами, а окна в пол на первом этаже и просторная терраса позволяют насладиться ими в полной мере. Такая концепция полностью отвечает идее американского деревенского домика, несмотря на его габариты и вместительность, и одновременно позволяет испытывать комфорт современного загородного дома.











