Дом с палубой
Дом расположен на берегу реки в окружении хвойного леса.
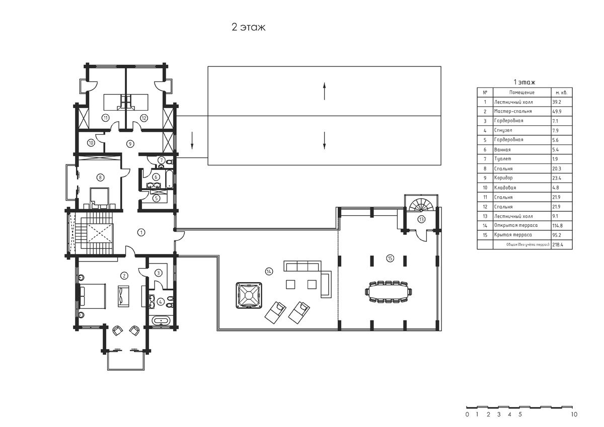
Объем дома разделен натри блока и имеет П-образную форму. Жилой блок разместили на двух уровнях, он включает хозяйскую спальню, три детские с сопутствующими комнатами. К этому же блоку отнесли малую гостиную, которая исполняет функцию домашнего кинотеатра, а в центральной части первого этажа предусмотрели место для гостевой спальни и зимнего сада с выходом во внутренний двор.
Жилая часть является связующей между остальными частями, при этом спальные комнаты запроектированы в разных концах второго уровня и не располагаются в проходных зонах.
Главная спальня имеет собственную просторную гардеробную и санузел. В общественной части заключены кухня, столовая и большая гостиная. Из этих комнат открывается панорамный вид на прилегающий ландшафт, также из столовой и гостиной есть выход на террасу шириной 5 метров.
Кровля над кухней-столовой-гостиной эксплуатируемая, с подъемом наверх по винтовой лестнице, на нее также можно попасть из лестничного холла жилого блока, что существенно облегчает коммуникацию.
На верхней террасе открытые и крытые зоны, уличный мини-бассейн и место для кухни под навесом — эта часть символизирует палубу, на которой проводят домашние праздники, собирают гостей или загарают в теплое время года.
Третий блок расположен длинной стороной к фасаду участка и ограждает жилые зоны от внешнего воздействия. В нем находится спа-зона с бассейном, сауной и необходимыми комнатами. Витражное остекление бассейна направлено во внутренний двор и имеет выход на узкую площадку под свесом кровли.
Дом в Подмосковье для семьи из 5 человек.
Площадь дома 770 м2.
Площадь участка 0,7 га.











