Дом с рублеными стенами в п. Зеленые Дали
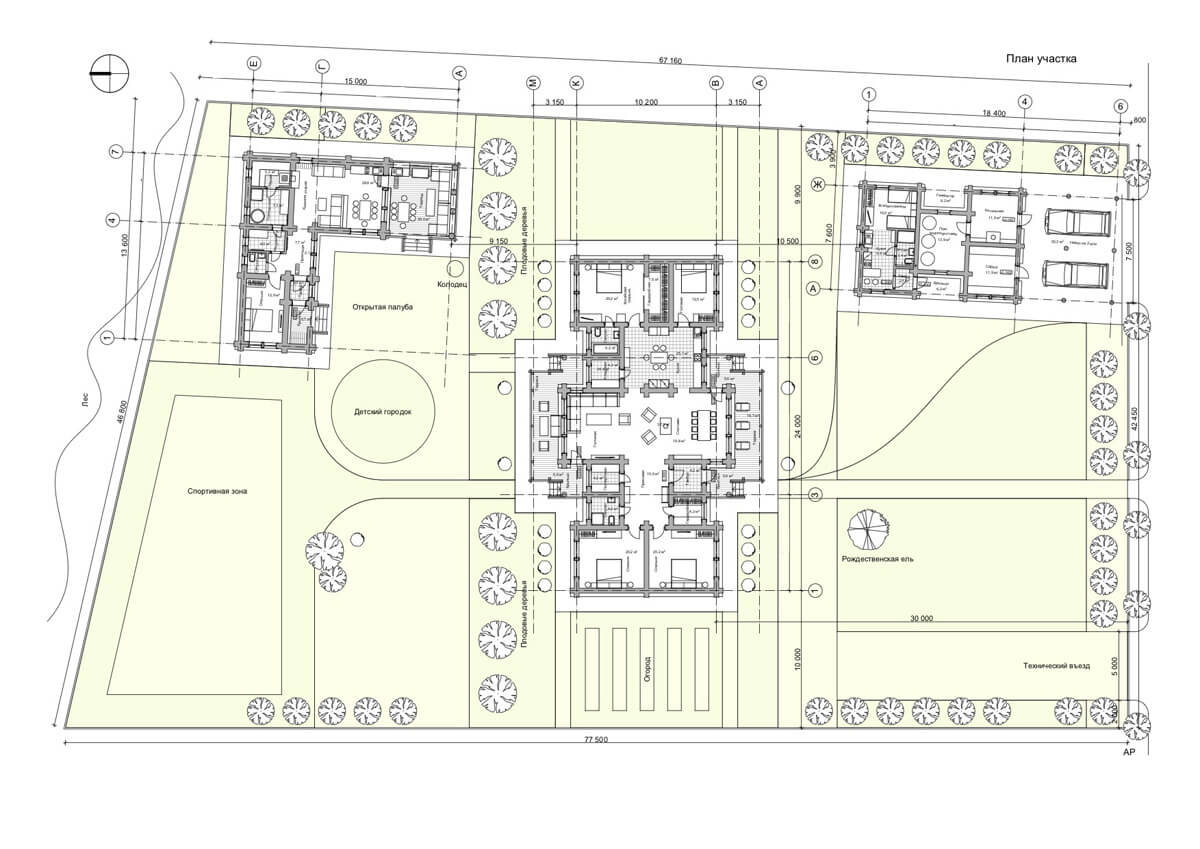
Загородный дом запроектирован для круглогодичного проживания в поселке Зеленые Дали Московской области на ровном участке. Здание одноэтажное с совмещенной скатной кровлей, без подвала. Основные строительные материалы и конструкции: стены бревенчатые диаметром 350 мм рубленые (фронтоны рубленые); фундамент — монолитная железобетонная плита; кирпичный цоколь толщиной 380 мм можно отделать натуральным или искусственным камнем вразбежку (камни выступают из кладки для придания ей скульптурной выразительности), устройство пола — армированная стяжка по эффективному утеплителю; перекрытие жилой антресоли — по деревянным балкам, устройство крыши — деревянная стропильная конструкция с эффективным утеплителем, покрытие кровли — гибкая черепица (Shinglas, коллекция Jazz, цвет Naska).
Архитектурное решение образа дома — объемно-пространственная композиция горизонтальной направленности, симметричная в своей основе и подчеркнутая линиями кровель, архитектурными элементами и деталями, сочетающая современное видение с традициями деревянной архитектуры. Широкие относительно пологие кровли (18 градусов) объединяют и зрительно и фактически занижают объем, усиливая его связь с ландшафтом.
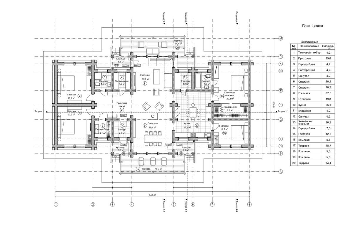
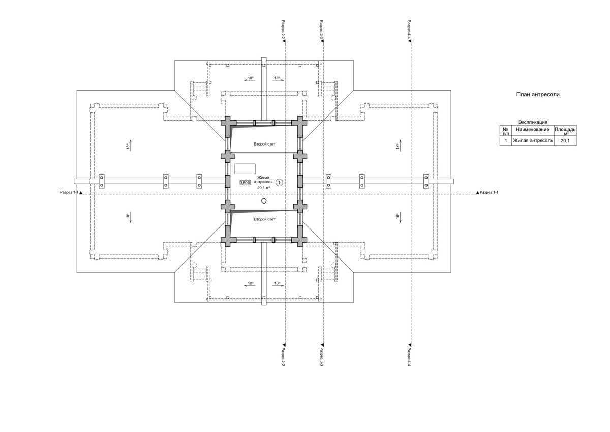
Планировка дома выполнена в соответствии с заданием на проектирование, исходными данными и учитывает функциональное зонирование помещений: общественно-гостевая и частные (приватные) зоны. В доме располагаются тепловой тамбур главного входа, прихожая, гардеробная, гостевой санузел с душем, постирочная, четыре спальни, одна из которых хозяйская, имеет свою ванную и гардеробную. Также в доме запроектированы кухня с зоной для завтрака и кладовой, столовая и гостиная с двухсторонним камином и с выходами на две крытые не остекленные террасы. Кроме того, над частью общественно-гостевой зоны имеется жилая антресоль (детская игровая), эффектно обогащающая пространство с высоким потолком.












