Множественный выбор
Выбрать номинацию

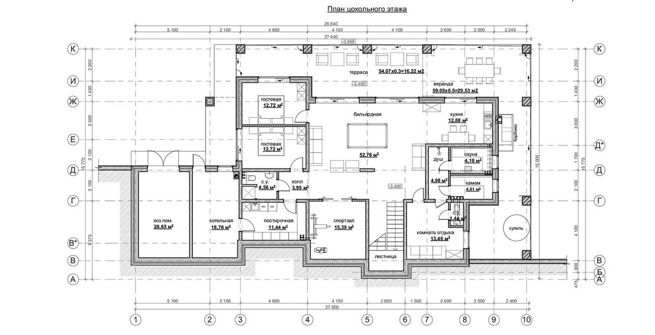
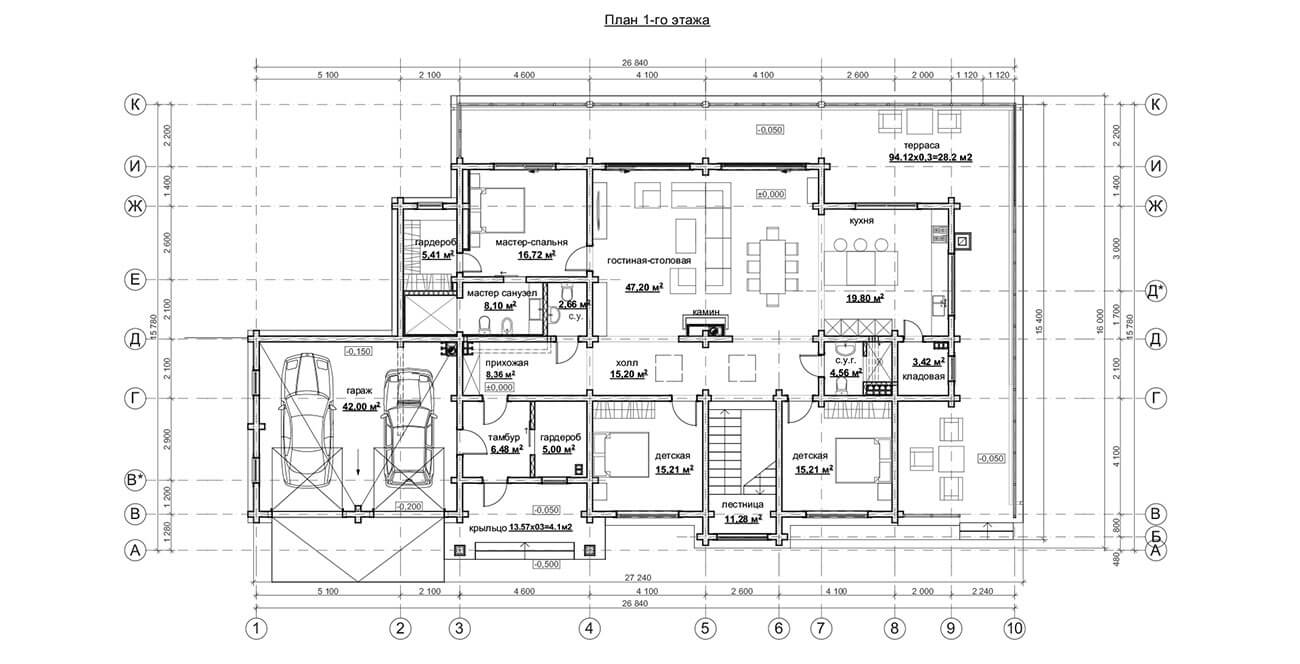
Дом с террасами на берегу озера

Частный двухуровневый дом с обширными террасами расположен на живописном берегу озера в поселке «Солнечный берег» Ленинградской области.

Дом, спроектированный с учетом особенностей участка с активным рельефом, предназначен для людей, которые ценят максимальный комфорт, функциональность и современную эстетику.

В стилистистическом решении объединены элементы современного шале и кантри. Свободная планировка помещений визуально ориентирована на видовое пространство участка. Первый этаж выполнен полностью деревянным и легким; цоколь, уходящий вниз по рельефу, напротив, сделан на контрасте — массивным и каменным. Безрамное остекление террасы цоколя, зрительно переходящее в ограждение первого этажа, придает постройке стилистическую актуальность и органично связывает с окружением, которое в нем отражается.

Здание вписано в сложный рельеф, поэтому при подъезде с улицы фасад главного входа выглядит одноэтажным деревянным строением, а оба боковых фасада и главный, обращенные к участку и реке, представляют собой двухуровневое строение уже с монументальным каменным цоколем.

Функционально дом разделен на приватный и гостевой этажи. Все помещения и комнаты семейного круга расположены на первом этаже. Это — основная гостиная-кухня-столовая с кладовой, две детские с санузлом, хозяйская спальня с санузлом и гардеробом, входная группа с гаражом, гардеробом и санузлом, а также выход на большую террасу первого этажа. Цокольный этаж включает две гостевые спальни с санузлом, бильярдную, спортзал, кухню, спа-комплекс с сауной и хаммамом, санузлом, душевой и комнатой отдыха, а также имеет выход на остекленную террасу с зоной для барбекю.

Общая площадь дома — 505 кв. м.

Выставка конкурсных проектов
ВЫСТАВКА КРАСИВЫЕ ДОМА - 2026

ФОТОГАЛЕРЕЯ
ЭКСПОЗИЦИИ
КОНКУРСНЫХ
ПРОЕКТОВ

КАК ЭТО БЫЛО
Выставка конкурсных проектов проходит дважды в год (Весна | Осень)

Отзывы

Можно использовать **жирный**, *курсив*, [ссылку](https://example.com), списки через - или 1.
Пока отзывов нет. Будьте первым.